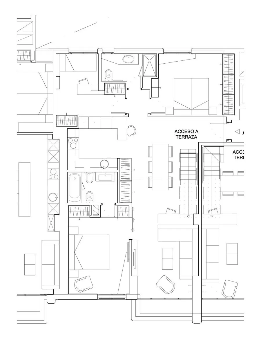
Después de rehabilitar zonas comunes, apartamentos, garajes, etc sólo faltaba convertir este edificio situado en la avenida de Brasil, 30, en Madrid, en un espacio único, casi sin competencia en el mercado de la vivienda de alquiler: la construcción de un solárium y 12 viviendas dúplex de lujo en su ático.

Su cubierta plana, que hasta la fecha ha permanecido sin uso ni rentabilidad para la propiedad es, según Carlos Hernández-Carrillo, arquitecto responsable del proyecto, “el espacio de mayor valor potencial del inmueble gracias a su situación privilegiada, con unas impresionantes vistas en todas sus direcciones, desde la sierra de Guadarrama hasta el centro de Madrid; desde Estudio b76 hemos propuesto a nuestro cliente la construcción de un solárium ajardinado con diferentes usos para disfrute de todos los inquilinos y la construcción de 12 dúplex de lujo, conectando cada una de las viviendas de la planta décima con la parte que le corresponde de la cubierta, convertida en un verdadero jardín urbano con minipiscina y cocina de exterior incluida”.

Madera tecnológica y césped artificial en el suelo, además de las divisiones entre las terrazas con tablones de madera rústica y jardineras en acero, sembradas de plantas naturales, serán los materiales protagonistas; una barandilla totalmente acristalada así como el aterrazamiento de las diferentes zonas, permitirán disfrutar plenamente de las vistas y la paz en un entorno de ensueño en el centro de Madrid.




Nos han publicado en:
http://www.inmodiario.com/164/19604/estudio-rehabilita-edificio-avenida-brasil-espacio-unico.html
http://www.embelezzia.com/vivienda/el-lujo-de-vivir-en-un-atico-duplex-en-la-mejor-zona-de-madrid
http://www.autocadmagazine.com/noticia/1576/un-espacio-unico-con-vistas-de-madrid#.VBrt8_l_tyU