ESTUDIO B76 PRESENTA SU PROYECTO PARA EL SHOWROOM DE CANALEJAS MADRID CENTRO

El objetivo buscado en el proyecto, es equipar y decorar los espacios de las plantas sexta y quinta un edificio situado en la Plaza de Canalejas de Madrid, de la forma más adecuada para cumplir la función de oficinas de comercialización y showroom de “Canalejas Madrid Centro”, dando además la imagen de calidad tan importante para la promoción inmobiliaria.

Según Carlos Hernández-Carrillo, arquitecto responsable de este proyecto, “ambas plantas deben transmitir a los posibles clientes dos características fundamentales de la promoción:

1.La calidad de diseño, materiales y ejecución.

2.La puesta en valor del patrimonio arquitectónico de principios del siglo XX de los seis edificios que forman parte de la promoción”.

 

Por estos dos motivos, desde Estudio b76 se ha optado por crear espacios acogedores, más ligados al espacio doméstico que al de oficinas, poniendo en valor el patrimonio arquitectónico y decorativo del propio edificio que se ocupa, contemporáneo de los edificios objeto de la promoción.

 

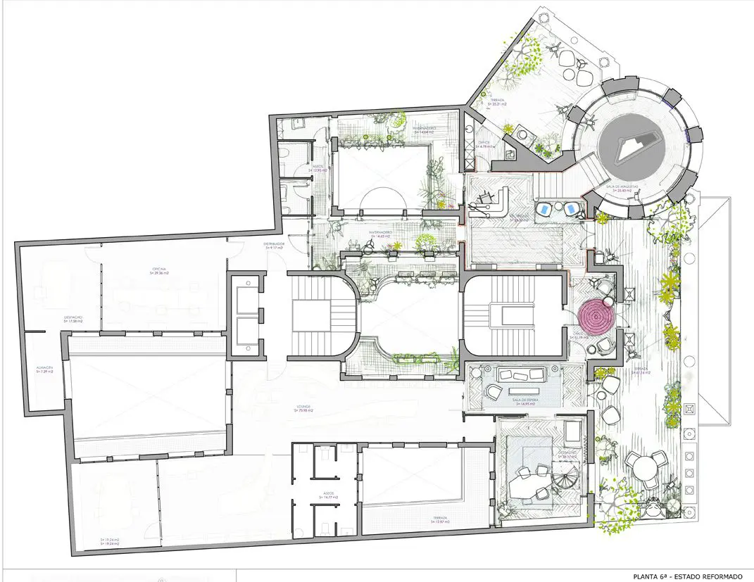
En la planta sexta se sitúa el acceso principal al espacio para la administración y comercialización de la promoción “Canalejas Madrid Centro”, accediendo a un hall de entrada que da paso a la recepción. Desde aquí, se redirige al cliente a la zona de comercialización del espacio residencial en la misma planta.

A la derecha, una escalera de 10 peldaños nos lleva al torreón, que alberga la “sala de maquetas”; a la izquierda, un hueco da paso a la zona del “invernadero”: un amplio pasillo acristalado a ambos lados desde donde podemos ver las terrazas también ajardinadas de ambos patios, todo ello repleto de plantas y que comunica con los aseos, que también podrán ser utilizados por los clientes. El suelo de esta zona se construirá con baldosa hidráulica con acabado similar al de las terrazas de los patios; las paredes irán revestidas con papel vinílico imitando textil natural. Finalmente, nos encontramos con la salida a la terraza exterior, más amplia.

De vuelta por el hall de la planta sexta, se accede al área de comercialización del espacio residencial.

A través de una sala de espera, podemos entrar en la sala de atención comercial, con una importante librería donde combinaremos atrezzo con las carpetas y planos que contienen toda la información de viviendas a comercializar. Desde la sala, se accede también a la gran sala donde estarán todos los muestrarios de materiales y equipamientos de viviendas. Desde Estudio b76, se propone que tanto la decoración como el equipamiento de este espacio se realice de acuerdo con los arquitectos y decoradores de las viviendas, incluidos los aseos y el área de administración visible desde esta zona.

Finalmente, la planta quinta, está destinada a la comercialización del espacio de uso comercial de la promoción, desde donde se entra por el hall y sala de espera, que a su vez da acceso a tres salas donde los diferentes comerciales reciben a los posibles inquilinos.

[+] MÁS INFORMACIÓN SOBRE EL PROYECTO

Contáctanos y comencemos un proyecto juntos

Compartir