
Estudio b76 ha formado parte de este importante proyecto en colaboración con diversos equipos técnicos de diferentes disciplinas; Flaquer Arquitectos como máximo responsable, el arquitecto César Alonso en el paisajismo del conjunto, el estudio inglés Jestico & Whiles en el concept design, y los equipos propios de Palladium Hotel Group y Hard Rock en la decoración e incorporación de la marca al diseño.

La responsabilidad de Estudio b76 ha correspondido al diseño de las fachadas y distribución interior de plantas de habitaciones y zonas comunes de la Torre, antiguo Hotel Don Toni.


La reforma proyectada ha dotado al establecimiento de todas las comodidades, instalaciones y requisitos técnicos exigidos en la normativa vigente para la adaptación del hotel a la categoría de cinco estrellas, implementando nuevos servicios para los clientes (spa, salas de convenciones, restaurantes, sala de conciertos…).



El elemento de mayor impacto visual del proyecto es la Torre, proyectada por Estudio b76, perfectamente visible para el que llega en barco o en avión a la isla. Es a su vez el corazón del complejo, punto de acceso y donde se sitúan la mayor parte de los servicios que requiere el complejo.

Con la propuesta de Estudio b76, la torre del Hard Rock Hotel se ha convertido, junto al Ushuaia Tower, en símbolo construido de una nueva Ibiza que apuesta por el turismo de calidad como mejor vía para garantizar la sostenibilidad de la Isla a todos los niveles.

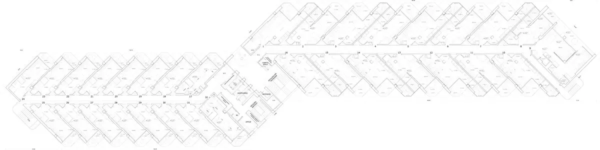
La mayor virtud y a la vez dificultad del proyecto de reforma de la Torre, fue su peculiar distribución en espina de pez, que permite una perfecta visión de la playa y del mar. Fue precisamente la solución aportada para sus habitaciones y el efecto que produce en la fachada del edificio con más visibilidad de toda Ibiza, lo que mereció la confianza de los promotores en la propuesta de Estudio b76.






Cada habitación junior suite del actual Hard Rock Hotel, fue en su día habitación y media del antiguo hotel tres estrellas.
Desde su interior, en cualquier punto, se puede observar el mar. Los jacuzzis se sitúan en la terraza acristalada, como si nos bañáramos en el mismo mar Mediterráneo que estamos viendo.






Un sistema de led RGB incorporado a la fachada, genera una impactante imagen nocturna, convirtiendo a este edificio en un auténtico faro que colaborará en seguir situando esta zona de Ibiza en el panorama turístico internacional de calidad.

En lo que al interior se refiere, el edificio incorpora la característica iconografía de la marca Hard Rock, sin olvidar la peculiaridad de su ubicación en una isla con personalidad propia.
Un proyecto que ha tenido muy en cuenta el espectáculo del rock and roll, presente en cada rincón del hotel, con el Stage & Sport Bar para conciertos cerrados y un escenario al aire libre donde las mejores figuras internacionales del Pop y del Rock ya tienen su cita obligada.