Espacio central de trabajo. Nave Estudio b76. Fotografía: Octavian
Estudio b76 ha rehabilitado una antigua nave industrial donde se ubicaba el obrador ya abandonado del conocido catering madrileño, Casa Mónico, y lo ha convertido en su nueva sede y vivienda familiar de su principal arquitecto, CEO y cofundador.
Fase de demolición obrador Casa Mónico y posterior. Fotografía: Estudio b76
Estudio b76 ha desarrollado este proyecto en su condición de estudio de arquitectura e interiorismo, tramitando las licencias necesarias, gestionando la contratación de las obras y aportando el capital como promotores.
Esa capacidad de servicio integral que Estudio b76 tiene, le convierte en una de las empresas más atractivas del sector; nada mejor que su propia sede para demostrarlo.
Desde hace décadas dedicados a proyectos hoteleros y tras la crisis desatada en el sector con motivo de la Pandemia, Estudio b76 ha vuelto a potenciar su departamento residencial, con proyectos de viviendas unifamiliares y bloques de vivienda colectiva y con un nuevo concepto que es el desarrollo de promociones propias aprovechando las oportunidades que el cambio de uso de locales y naves industriales a vivienda ofrece.
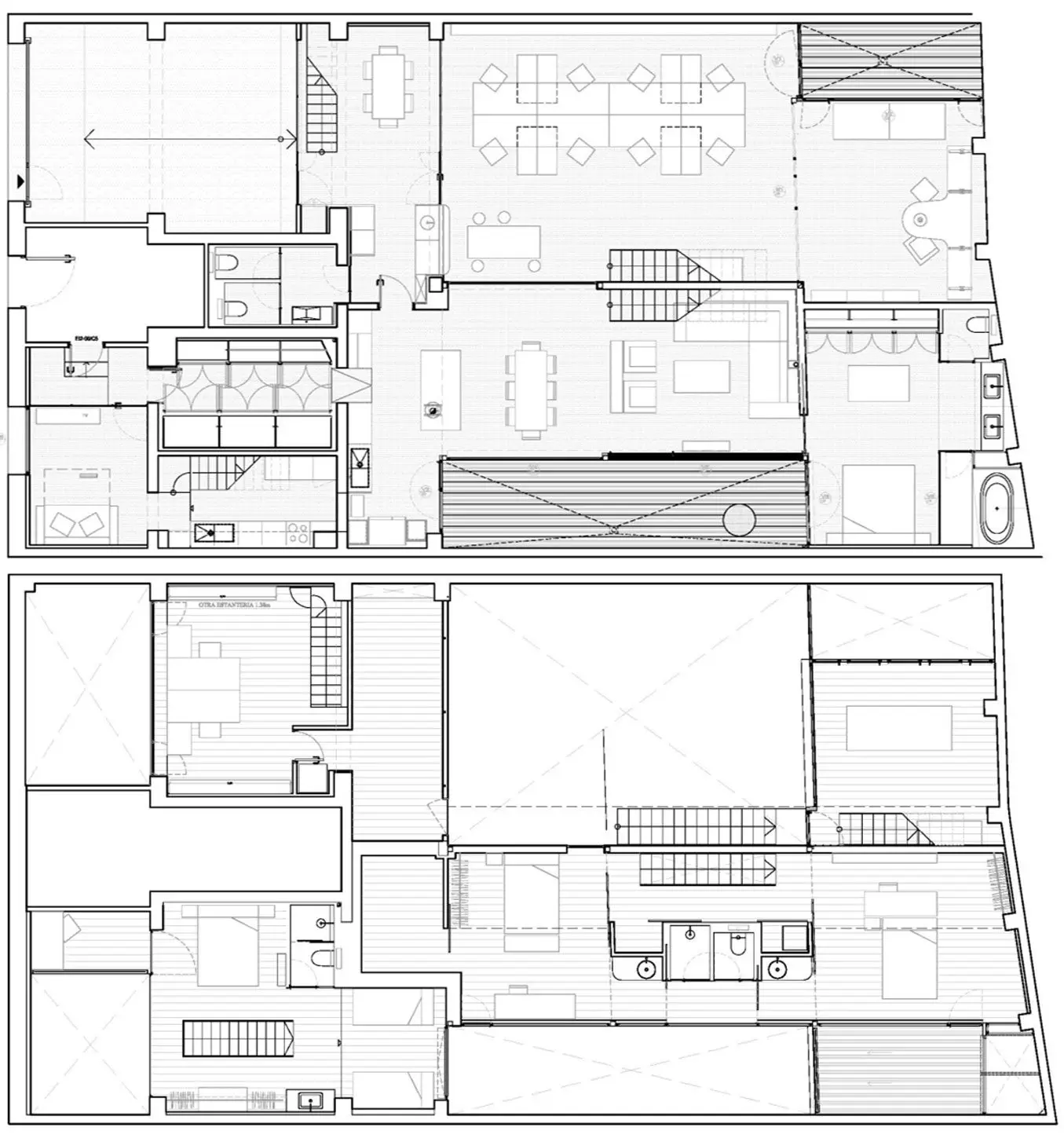
Planos de proyecto planta baja y primera nave Estudio b76. Planos: Estudio b76
Con sus 450m2 construidos, repartidos casi a partes iguales entre vivienda y espacio de trabajo, este proyecto de Estudio b76 se ha convertido en referencia de espacio híbrido, donde los usos no se zonifican de forma estanca, sino que visual y funcionalmente se funden, haciendo difícil distinguirlos entre sí, pero a la vez, con la capacidad de mutar para mantener la privacidad si las circunstancias lo requieren.
En palabras de Carlos Hernández-Carrillo, CEO y Arquitecto de Estudio b76: “La clave de este pequeño pero ambicioso proyecto, fue introducir luz y aire en un lugar lúgubre y hermético. Fueron los patios y lucernarios los que obraron el milagro.”
Efectivamente, cuando entras en este microcosmos inserto en el corazón del barrio de Tetuán en Madrid, te trasladas a un lugar tranquilo, perfectamente acondicionado y con la luz natural justa y necesaria en cada momento, tanto para el desarrollo profesional como para la vida doméstica. Se respira equilibrio y belleza.
Recuerda uno aquella inspirada frase de Le Corbusier: “la arquitectura es el juego sabio y magnífico de los volúmenes bajo la luz”.
Sala de reuniones y estructura de cerchas. Nave Estudio b76. Fotografía: Octavian
La estructura de la cubierta resuelta mediante unas preciosas cerchas mixtas de hormigón y acero y la fábrica de ladrillo visto de su perímetro, una vez desprovisto del revoco, son lo único que queda del proyecto original de los años 50, pero ambos elementos, cerchas y ladrillo han sido voluntariamente convertidos en protagonistas del lugar.
Lucernario, cerchas y ladrillo en espacio general de trabajo. Nave Estudio b76. Fotografía: Octavian
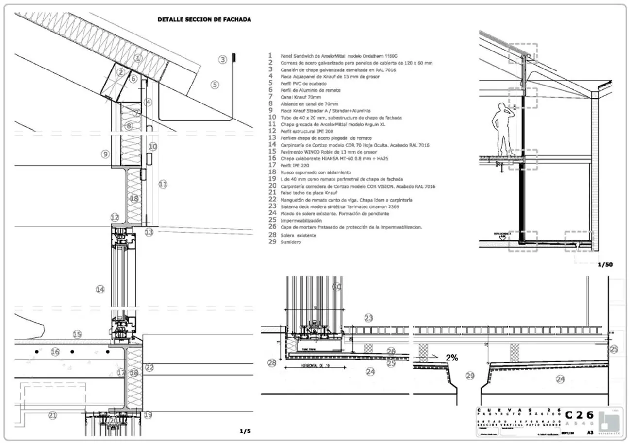
El ejercicio es simple, sobre las cerchas originales a dos aguas, un panel sándwich de 10 cm de espesor, nos cubre pero no totalmente. En la parte baja de ambos faldones de cubierta, con un ancho de dos metros, y en toda la profundidad de la nave, se recorta esa cubierta liberándonos el cielo para nuestro disfrute.
El primero de estos recortes hechos en la cubierta, situado sobre el espacio de trabajo, se acristala parcialmente, enmarca el cielo azul madrileño sobre nuestras cabezas enseñándonos el manso pasear de las nubes.
El otro recorte, del lado de la vivienda, se abre y ajardina a modo de patio inglés aportando luz y ventilación a las dos plantas que constituyen la mitad residencial de la nave.
Este patio estrecho y alargado recorre longitudinalmente la vivienda, mostrándose desde su interior como un cuadro de texturas de ladrillo visto y hermosa vegetación visible desde todos los espacios de la casa.
El espacio de la nave queda dividido en dos con un inteligente juego de simetrías y transparencias que permite seguir leyendo la totalidad de la nave como un espacio único, esto sucede tanto a nivel de planta baja como a nivel de cubierta.
Sección transversal nave Estudio b76. Planos: Estudio b76
En el primer caso, a nivel de planta baja, una gran cristalera comunica visual y trasversalmente estudio y vivienda, permitiéndonos entender el ancho total del espacio y disfrutar a lo largo del día, de las diferentes formas que la luz tiene de penetrar por ambos “recortes” hechos en la cubierta: lucernario en el estudio, patio en la vivienda.
En el segundo caso, a nivel de cubierta, una tercera altura retranqueada y acristalada, nos muestra la continuidad de las cerchas, permitiendo a nuestra imaginación concluir que el espacio no se termina de cerrar allí arriba.
En el interior de la nave, Estudio b76 ha construido una estructura vista de dos alturas, metálica y acristalada, respetuosa con el perímetro y la cubierta, donde se organizan de forma bella y funcional las diferentes necesidades de ambos usos. Nos recuerda a esas estructuras en interiores de naves de Alejandro de la Sota, como el Colegio Maravillas o las naves del CENIM.
Al estudio se accede por un gran portón metálico, austero, forrado con chapa deploye, donde tan solo una pequeña placa con el logotipo histórico de Estudio b76 nos anuncia que allí tal vez haya algo más que un garaje.
Espacio central de trabajo y acristalamiento hacia la vivienda. Nave Estudio b76. Fotografía: Octavian
Efectivamente, tras el garaje aparcamiento, una cristalera transparente nos muestra un primer espacio de recepción, donde se sitúan los aseos y cocina del equipo así como un área de atención a los comerciales y proveedores, donde la protagonista es una antigua mesa pastelera de acero inoxidable, original del obrador que allí hubo.
Inmediatamente a continuación se abre ese gran espacio de 8 metros de altura, bañado de luz cenital. Es la zona general de trabajo, en cuyo lugar el equipo de Estudio b76 desarrolla los proyectos hasta sus últimos detalles.
Despacho y patio. Nave Estudio b76. Fotografía: Octavian
Al fondo un pequeño patio y el despacho del arquitecto, donde dos tableros con sus parales nos recuerdan esa forma de proyectar “antigua” pero que en Estudio B76 sigue siendo presente y futuro: el lápiz, “auténtico instrumento generador de ideas y medio perfecto de expresión de las mismas”, según palabras de su director de proyectos.
Sobre el despacho y perfectamente visible, se encuentra la sala de reuniones, espacio en el que las ideas de cada proyecto se ponen en común entre el propio equipo y los clientes a los que van destinados.
Sala de reuniones. Nave Estudio b76. Fotografía: Octavian
En un nivel aun superior e inmediatamente bajo las preciosas cerchas, otro espacio diáfano y acristalado contiene una segunda área de trabajo.
Con suelo de Amorín Wicanders, e iluminado y ventilado por tres ventanas Velux, actualmente alberga la sede de Martians, compañía creativa de comunicación y marketing.
Zona superior de trabajo, planta segunda. Nave Estudio b76. Fotografía: Octavian
Desde la planta baja podemos entender perfectamente la dimensión y carácter del espacio proyectado por Estudio b76, tanto en su proporción vertical como longitudinal y transversal, en este último caso gracias a la gran cristalera que permite conectar visualmente con el salón/cocina y patio de la parte correspondiente a la vivienda.
Salón y comedor de la vivienda y cristalera hacia la zona de trabajo. Nave Estudio b76. Fotografía: Octavian
La vivienda es ampliación del espacio de trabajo o lugar privado familiar, según el día, la hora y las necesidades. Ese funcionamiento hibrido de la nave permite que los clientes disfruten de un aperitivo entorno a la isla de la cocina, aproximando física y emocionalmente al proyectista con el promotor a la vez que pueden valorar a modo de showroom la capacidad proyectiva de Estudio b76, tanto en su faceta arquitectónica como de interioristas.
Tan pronto podemos sentir el estudio como un espacio creativo e intimista, lleno de paz donde el único ruido es el piar de los pájaros del patio, como vivir un gran evento de presentación repleto de gente interesante y con música en directo.
La vivienda se organiza en dos alturas.
En planta baja, conectada visual y físicamente con el espacio de trabajo, se distribuye en salón, cocina, y comedor, paralelos al patio. Al fondo el espacio se prolonga mediante una corredera de suelo a techo con el dormitorio principal y con una pecera iluminada por su propio lucernario, contenedora del espacio destinado al baño, con bañera de Laufen y plato de ducha de Vital Bath.
Dormitorio y baño principal. Nave Estudio b76. Fotografía: Octavian
Vista desde patio de dormitorio y baño principal. Nave Estudio b76. Fotografía: Octavian
Es la clave de este espacio la visión del patio a modo de inmenso mural vivo. Gracias a las carpinterías correderas COR Vision de Cortizo y a los toldos veranda de Bandalux, la unión espacial, visual y lumínica entre el cielo de Madrid, el patio ajardinado y los espacios interiores es posible y mutable.
Salón, comedor, cocina y patio. Nave Estudio b76. Fotografía: Octavian
En la planta superior, dos dormitorios que son uno, o uno que son dos, unidos por un sabio juego de correderas, crean una isla central, contenedora de la ducha, el WC, armario y cuarto de limpieza.
Escalera de acceso a planta de dormitorios. Nave Estudio b76. Fotografía: Octavian
En este caso son los lavabos redondos de Sanindusa, el plato de ducha de carga mineral de Vital Bath y las paredes en porcelánico de Inalco/Discesur, los que visten esa isla funcional y bella, el resto del espacio se cubre con un cálido suelo de madera de roble de Vinco, y paneles también de roble natural.
Esa planta superior se cubre con una estructura de perfiles laminados y de cerchas mixtas de hormigón y acero. Nos recuerdan el origen industrial del espacio que hoy es una cálida y acogedora vivienda.
Dormitorio, baño y vista al patio. Planta primera. Nave Estudio b76. Fotografía: Octavian
Desde la planta superior podemos salir a otra terraza propia de uno de los dormitorios, pero que siguiendo la filosofía Zen de la continuidad de los espacios, nos permite mediante una escalerilla bajar nuevamente al patio ajardinado.
El suelo exterior de terraza y patios, está cubierta por un deck de madera tecnológica acabado cinamon de Tarimatec.
Patio longitudinal, vivienda. Nave Estudio b76. Fotografía: Octavian
Toda la planta baja de la nave se cubre con un suelo de mortero autonivelante Saint-Gobain Weber Dur en tono gris claro, que contiene en su interior un suelo radiante alimentado por aerotermia de Mitsubishi Climatización que a su vez se nutre de las células fotovoltaicas que recubren la cubierta inclinada de la nave.
Gracias al aislamiento térmico proporcionado por Saint-Gobain Placo y a las placas fotovoltaicas, las baterías y el inversor, tanto el espacio de trabajo como la vivienda, son autosuficientes en su iluminación, climatización y maquinaria, durante 10 meses al año, aportando incluso excedente a la red eléctrica.
Conforme avanza el día, la iluminación natural va cediendo terreno a la artificial, protagonizada por los proyectores de Simón Iluminación y como no, por las tiras de led ambar de Fullwatt/Ukai, que crean un ambiente muy personal e íntimo y que son ya signo de identidad en todos los proyectos de Estudio b76.
Vista nocturna salón cocina y zona de trabajo y comedor vivienda. Nave Estudio b76. Fotografía: Octavian
Tanto iluminación como control solar, están dirigidos y domotizados gracias a los mecanismos de Bticino y al sistema Netatmo de Legrand.
El sonido está controlado por equipos wifi y altavoces empotrados en techo de Eissound. Este sistema nos permite personalizar lo que escuchamos en cada espacio de la casa y el estudio y combinarlo a nuestro gusto.
Todo ello, luz, sonido, persianas, seguridad, consumo y producción eléctrica, controlado desde nuestro smartphone. Una nave bella, práctica e inteligente.
En lo que se refiere al equipamiento de la casa, todo ello es fruto y diseño propio de Estudio b76.
Dos piezas son las protagonistas del espacio de comedor y cocina:
La pieza en isla, recuperada y restaurada por Estudio b76 de las antiguas cocinas industriales que en aquella nave existieron y que ahora con superficie de piedra artificial de Consentino, y con placa de inducción magnética de Bosch, vuelve a la vida.
Cocina en isla, antiguo mueble industrial existente en la nave. Nave Estudio b76. Fotografía: Octavian
Y La mesa de comedor de piedra artificial (tipo terrazo, de los portugueses RMC), sobre estructura metálica, componible y ampliable, que desde Estudio B76 diseñaron con cariño y elegancia ex profeso para este espacio.
Mesa de piedra artificial y estuctura de soporte metálica, diseño Estudio b76 y variaciones sobre la silla Cesca de Marcel Breuer. Nave Estudio b76. Fotografía: Octavian
El resto de la cocina, también diseñada por estudio b76 se basa en unos módulos sencillos en madera de roble natural que integran electrodomésticos negros de la marca Bosh y que se cubren con encimera Silestone Arden Blue Suede de Cosentino, con fregadero de Franke y grifería extraíble de Intergrif.
La zona propia de salón se equipa con una librería sencilla en roble, un sofá en “L” diseño de Estudio b76 y una alfombra vegetal tejida y tintada en color mostaza en la India por J&T BCN.
Efecto de simetría, escaleras de acceso a planta primera de vivienda y estudio. Librería en Roble y alfombra de fibra natural. Nave Estudio b76. Fotografía: Octavian
En relación al equipamiento de los espacios de trabajo, Estudio b76 ha contado con Aretha para el diseño y fabricación de una inmensa mesa de trabajo de casi 7 metros de longitud y 1,5 metros de ancho, donde el trabajo en equipo es la seña de identidad.
Mesa central de trabajo y sillería de Aretha. Nave Estudio b76. Fotografía: Octavian
A parte de las piezas principales, todo el espacio está repleto de diseños del estudio, nos encontramos los prototipos de diversas lámparas utilizadas para las decoraciones de sus hoteles o cuadros y planos con la firma del prestigioso Estudio o de colaboradores queridos como la Menina de Felipao o cuadros de Agustín Gil, Carlos Franco, Gene Johnson, Teo Bargueño, entre otros.
Entrar en la nave de Estudio b76 es entrar en su alma creadora, te inunda de su forma de entender la arquitectura, el interiorismo y la vida desde el primer minuto que la visitas.
+ Para más información sobre el proyecto de la vivienda pincha [aquí]
+ Para más información sobre el proyecto del estudio pincha [aquí]
+Además, nos han publicado en: www.proarquitectura.es
Fase de demolición obrador Casa Mónico y posterior. Fotografía: Estudio b76
Planos de proyecto planta baja y primera nave Estudio b76. Planos: Estudio b76
Sala de reuniones y estructura de cerchas. Nave Estudio b76. Fotografía: Octavian
Lucernario, cerchas y ladrillo en espacio general de trabajo. Nave Estudio b76. Fotografía: Octavian
Sección transversal nave Estudio b76. Planos: Estudio b76
Espacio central de trabajo y acristalamiento hacia la vivienda. Nave Estudio b76. Fotografía: Octavian
Despacho y patio. Nave Estudio b76. Fotografía: Octavian
Sala de reuniones. Nave Estudio b76. Fotografía: Octavian
Zona superior de trabajo, planta segunda. Nave Estudio b76. Fotografía: Octavian
Salón y comedor de la vivienda y cristalera hacia la zona de trabajo. Nave Estudio b76. Fotografía: Octavian 
Dormitorio y baño principal. Nave Estudio b76. Fotografía: Octavian
Vista desde patio de dormitorio y baño principal. Nave Estudio b76. Fotografía: Octavian
Salón, comedor, cocina y patio. Nave Estudio b76. Fotografía: Octavian
Escalera de acceso a planta de dormitorios. Nave Estudio b76. Fotografía: Octavian
Dormitorio, baño y vista al patio. Planta primera. Nave Estudio b76. Fotografía: Octavian
Patio longitudinal, vivienda. Nave Estudio b76. Fotografía: Octavian 
Vista nocturna salón cocina y zona de trabajo y comedor vivienda. Nave Estudio b76. Fotografía: Octavian
Cocina en isla, antiguo mueble industrial existente en la nave. Nave Estudio b76. Fotografía: Octavian
Mesa de piedra artificial y estuctura de soporte metálica, diseño Estudio b76 y variaciones sobre la silla Cesca de Marcel Breuer. Nave Estudio b76. Fotografía: Octavian
Efecto de simetría, escaleras de acceso a planta primera de vivienda y estudio. Librería en Roble y alfombra de fibra natural. Nave Estudio b76. Fotografía: Octavian
Mesa central de trabajo y sillería de Aretha. Nave Estudio b76. Fotografía: Octavian