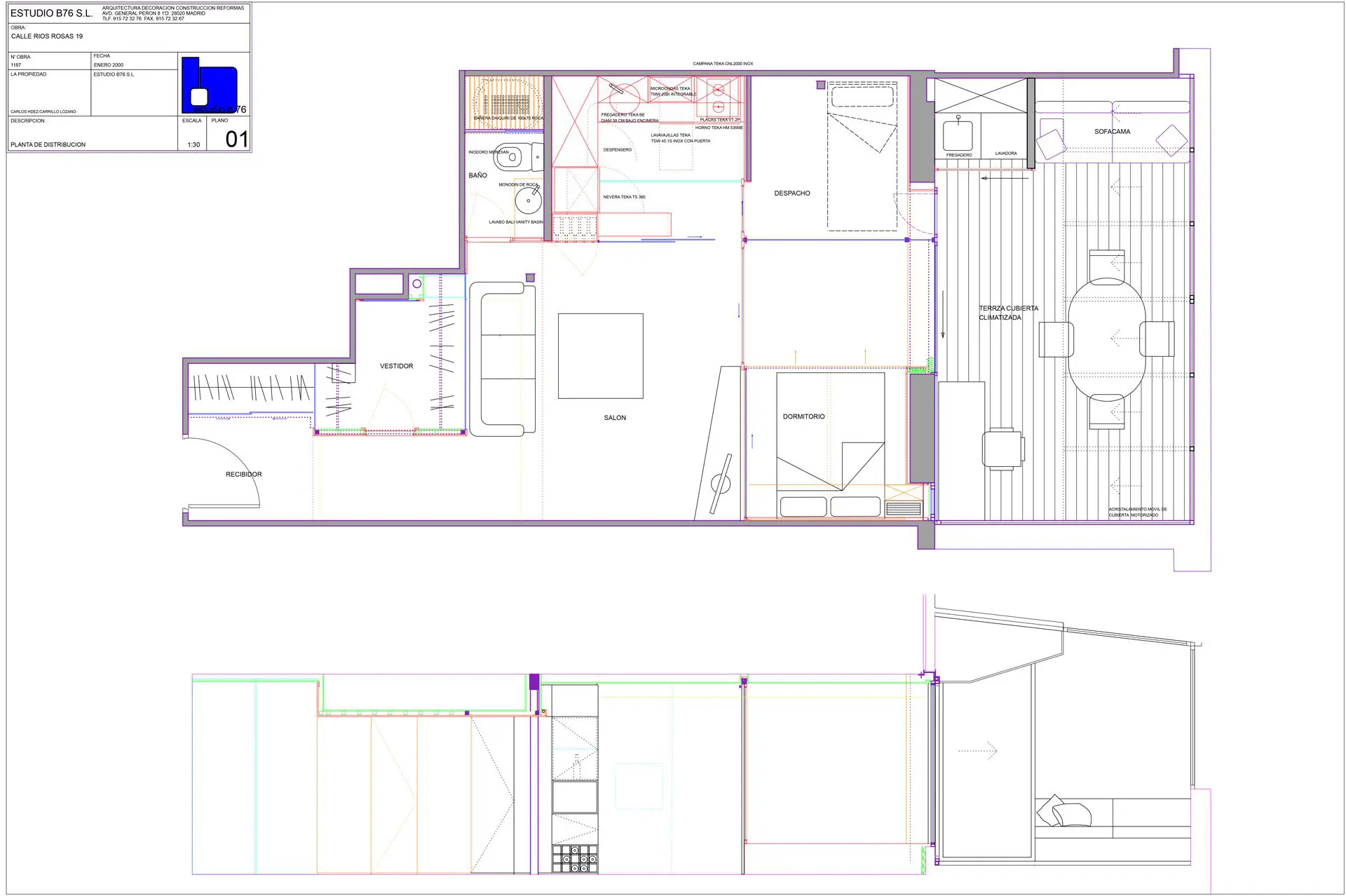
APARTAMENTO RIOS ROSAS 19

2001 / n.1075 / 60m2 / Uso Residencial / Proyecto de arquitectura interior, decoración, equipamiento y obra

reforma apartamento. Rios Rosas 19, madrid, estudio b76

45 m2 + 15 m2 de terraza cubierta son suficientes para crear un espacio para vivir único. El secreto: el aprovechamiento de cada cm2 y las vistas de la ciudad incorporadas como prolongación espacial. La sensación: como si navegaras en el interior de un cuidado y bien diseñado camarote.

Antes / después

antes-01-3 despues-01-3

Planos