GASTROBAR HOTEL VINCCI VIA 66

2023 / n.1647 / 133m2 / Uso Hotelero / Proyecto de arquitectura, decoración, equipamiento y obra

Gastrobar. Vincci Hoteles. Hotel Vincci Via 66. Gran Vía. Madrid. estudio b76

Vincci hoteles ha confiado en el diseño y la capacidad conceptual de Estudio b76 para la transformación de su salón del Hotel Vía 66, en un Gastrobar acogedor de día y estimulante de noche: El Burlesque lo llaman, asomado a los teatros de Musical de la Gran Vía Madrileña.

Cómodos sofás y sillones, combinados con mesas y banquetas a media altura y las banquetas altas en la zona de la barra, nos permiten encontrar el sitio adecuado para lo que venimos a hacer: beber, picar, charlar o leer.

Antes / después

antes-01 despues-01
antes-02 despues-02

Dibujos

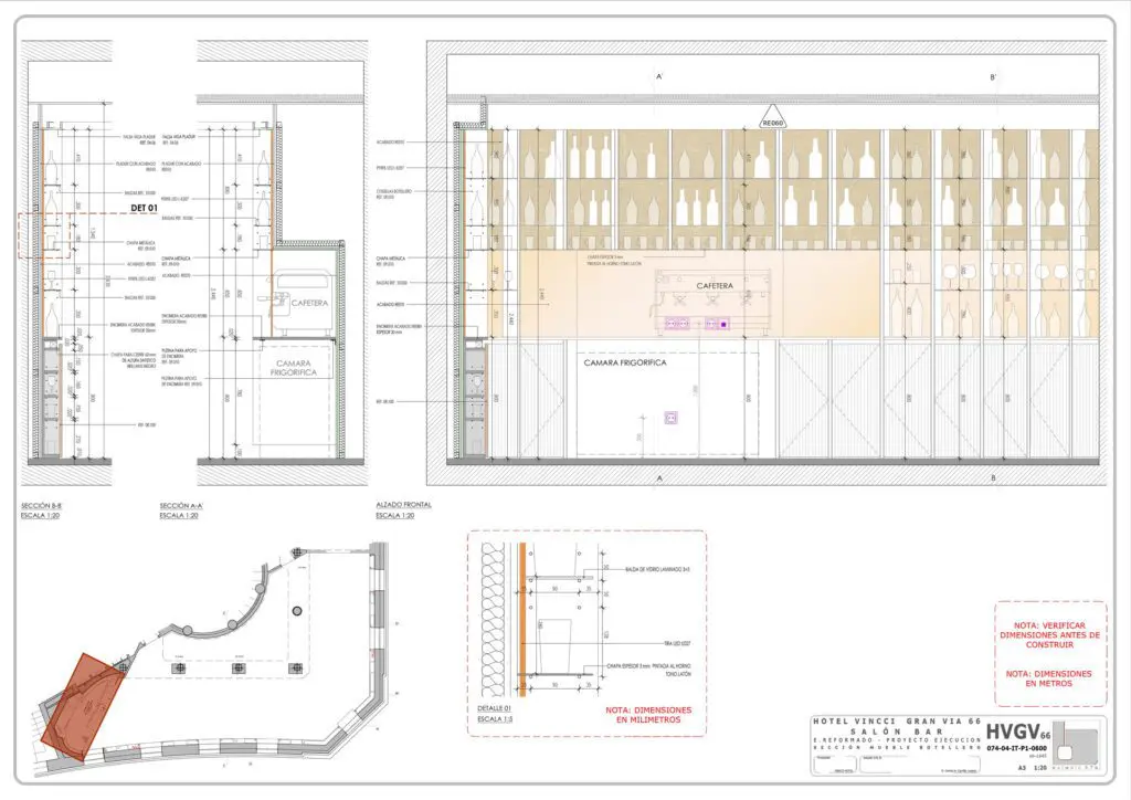
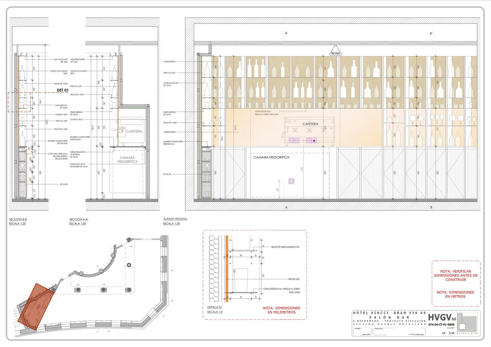
Planos