Gimnasio Square Fitness by Estudio b76

2018 / n.1494 / 314m2 / Ocio y retail / Proyecto de arquitectura interior, equipamiento y obra

Todos tenemos una idea preconcebida de lo que es una sala de entrenamiento: un espacio más o menos diáfano con los aparatos y mancuernas colocados por aquí y por allá, con una recepción con un mostrador mejor o peor atendido con una vitrina con productos de marcas relacionadas con el sector, donde llegamos nos ejercitamos y nos vamos.

Nada de esto es lo que ha propuesto Estudio b76 para esta nueva y joven marca de fitness, SQUARE FITNESS. Se ha diseñado una imagen potente que aúna lo mejor de una sala de entrenamiento específicamente diseñada para aplicar “THE SQUARE METHOD”, con un espacio de relación social y ”REFUEL & MEET”, con vocación de crear club entre sus usuarios; sin duda elemento diferenciador respecto de otras salas de entrenamiento.

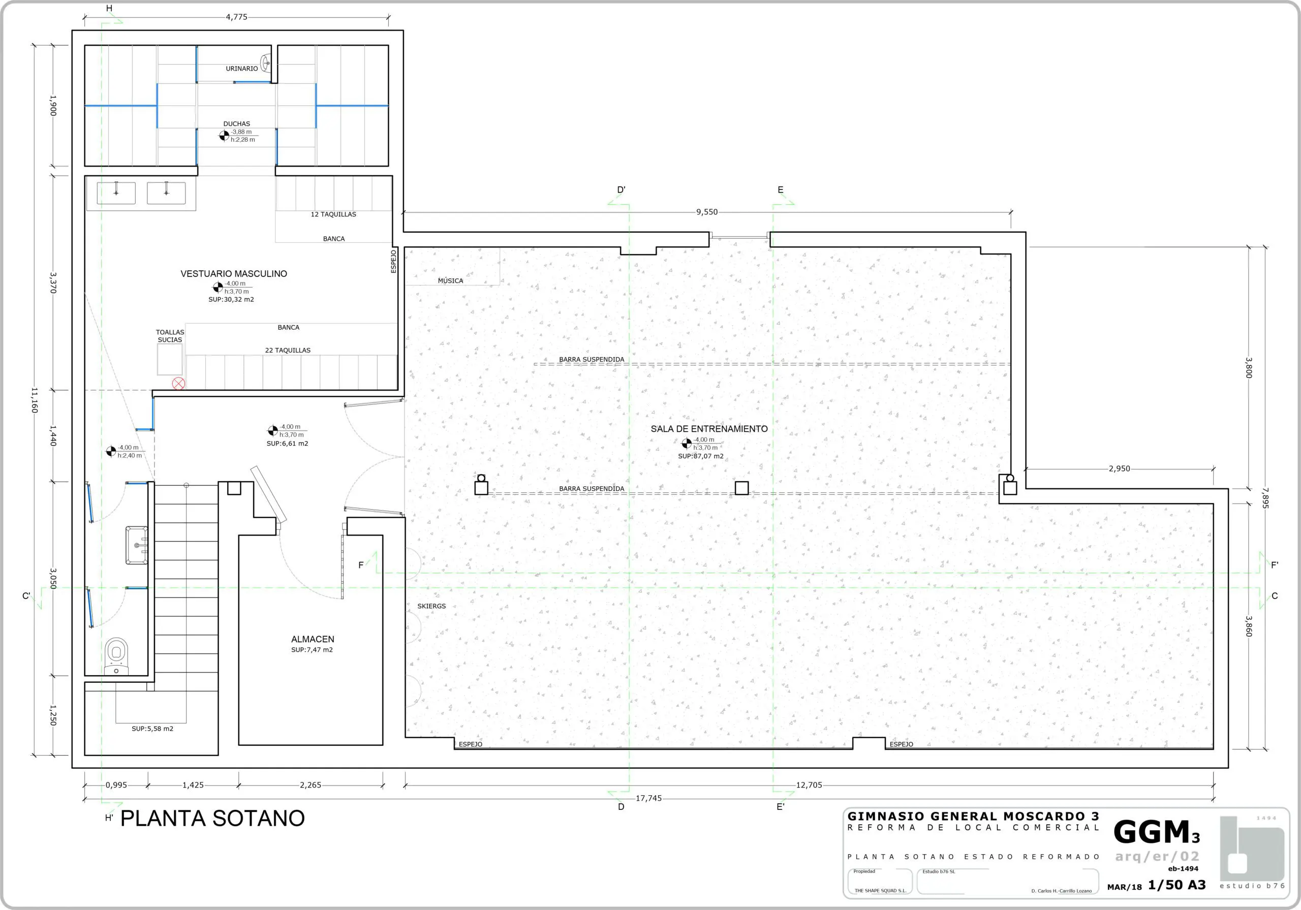
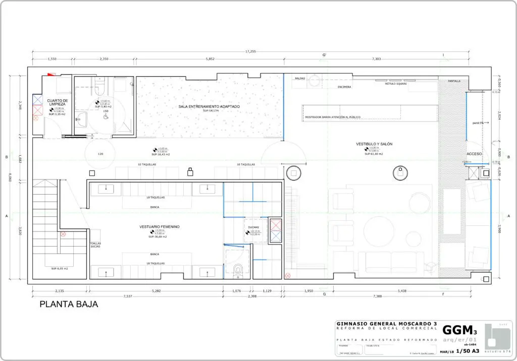
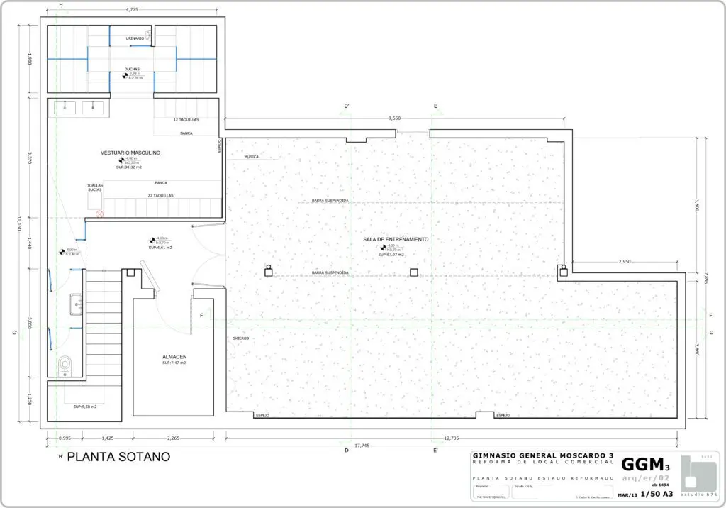
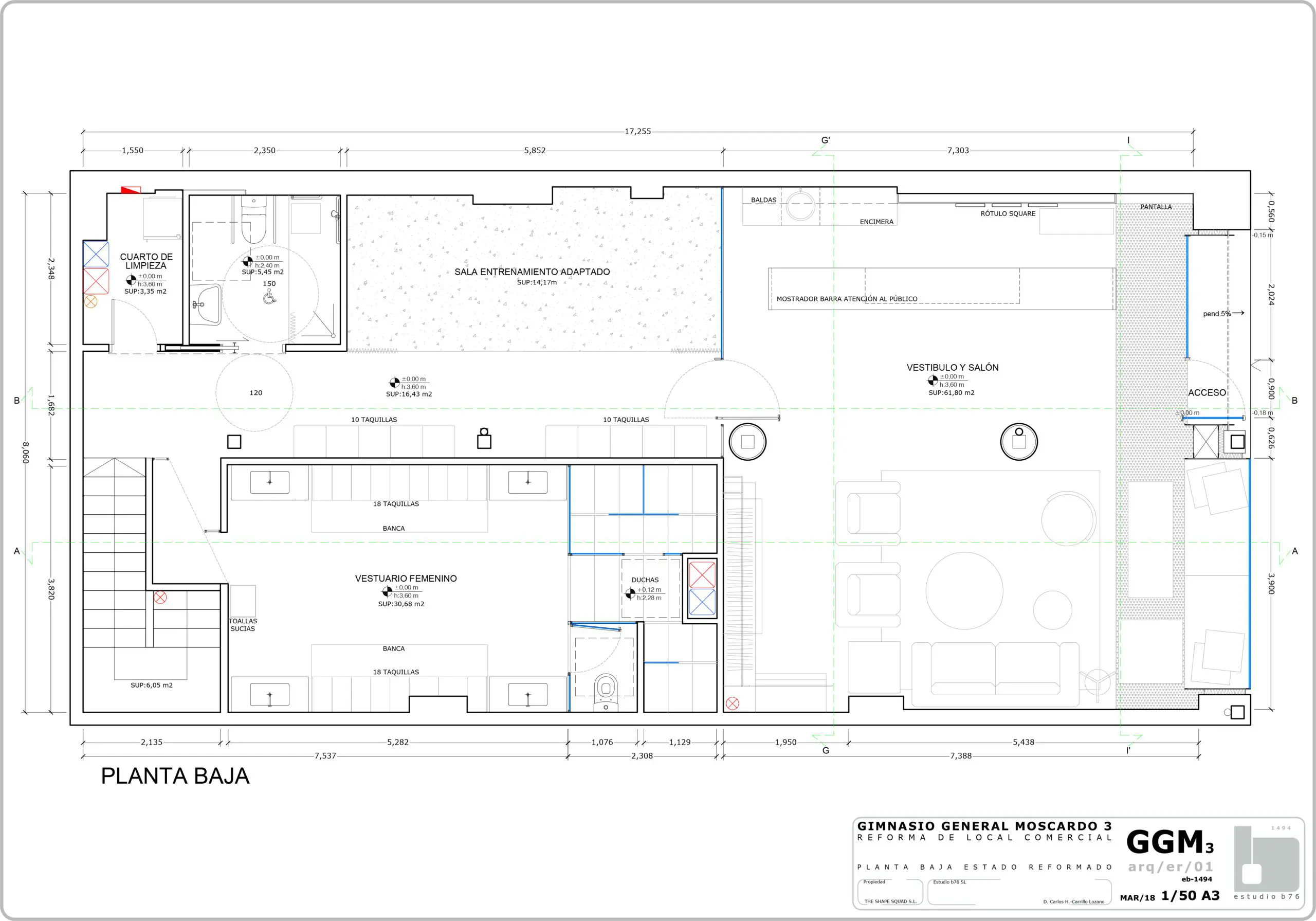
Planos

Dibujos

Infografías