HARD ROCK HOTEL IBIZA

2014 / n.1346 / 24.237m2 / 480 hab / Uso hotelero 5* / Proyecto de arquitectura y arquitectura interior

hotel, hotel de playa, palladium hotel group, Hard Rock Hoteles, Ibiza, estudio b76

Estudio B76 ha proyectado en colaboración con un importante equipo de profesionales de diferentes disciplinas (Flaquer arquitectos de Ibiza, el paisajista Cesar Alonso, el estudio ingles Jestico&Whiles y los equipos propios de Palladium Hotel Group y Hard Rock) el Hotel Hard Rock de Ibiza.

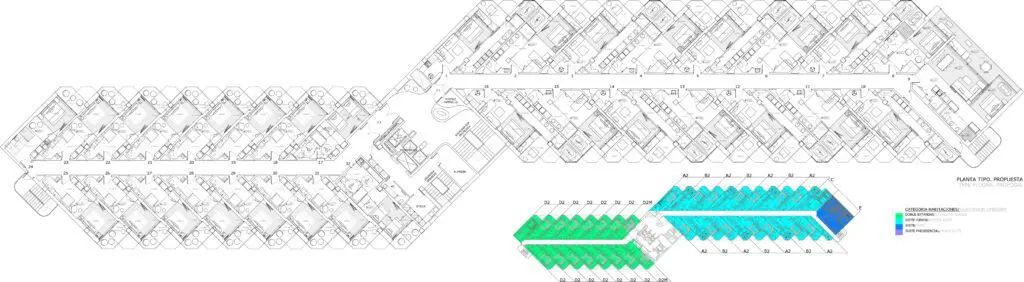
24.237m2 construidos y 480 habitaciones de lujo como rehabilitación del Hotel y Club Don Toni, viejo hotel tres estrellas situado en Playa d´en Bossa en Ibiza.

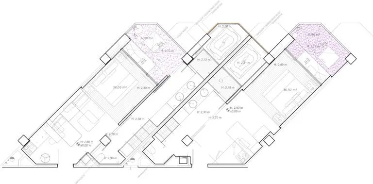
La responsabilidad de Estudio B76 ha correspondido principalmente al diseño de las fachadas y distribución interior de plantas de habitaciones y zonas comunes de la torre, antiguo Hotel Don Toni.

Antes / después

hotel, hotel de playa, palladium hotel group, Hard Rock Hoteles, Ibiza, estudio b76 hotel, hotel de playa, palladium hotel group, Hard Rock Hoteles, Ibiza, estudio b76
hotel, hotel de playa, palladium hotel group, Hard Rock Hoteles, Ibiza, estudio b76 hotel, hotel de playa, palladium hotel group, Hard Rock Hoteles, Ibiza, estudio b76

Infografías

Planos