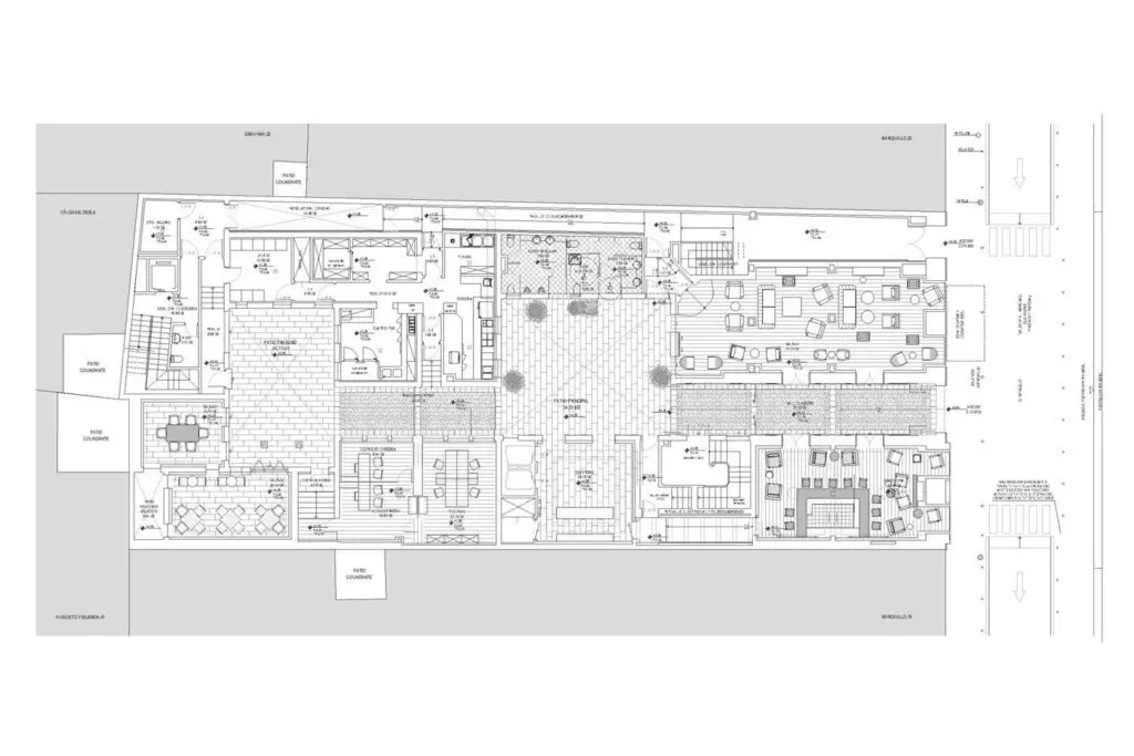
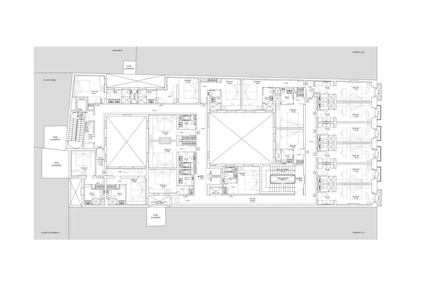
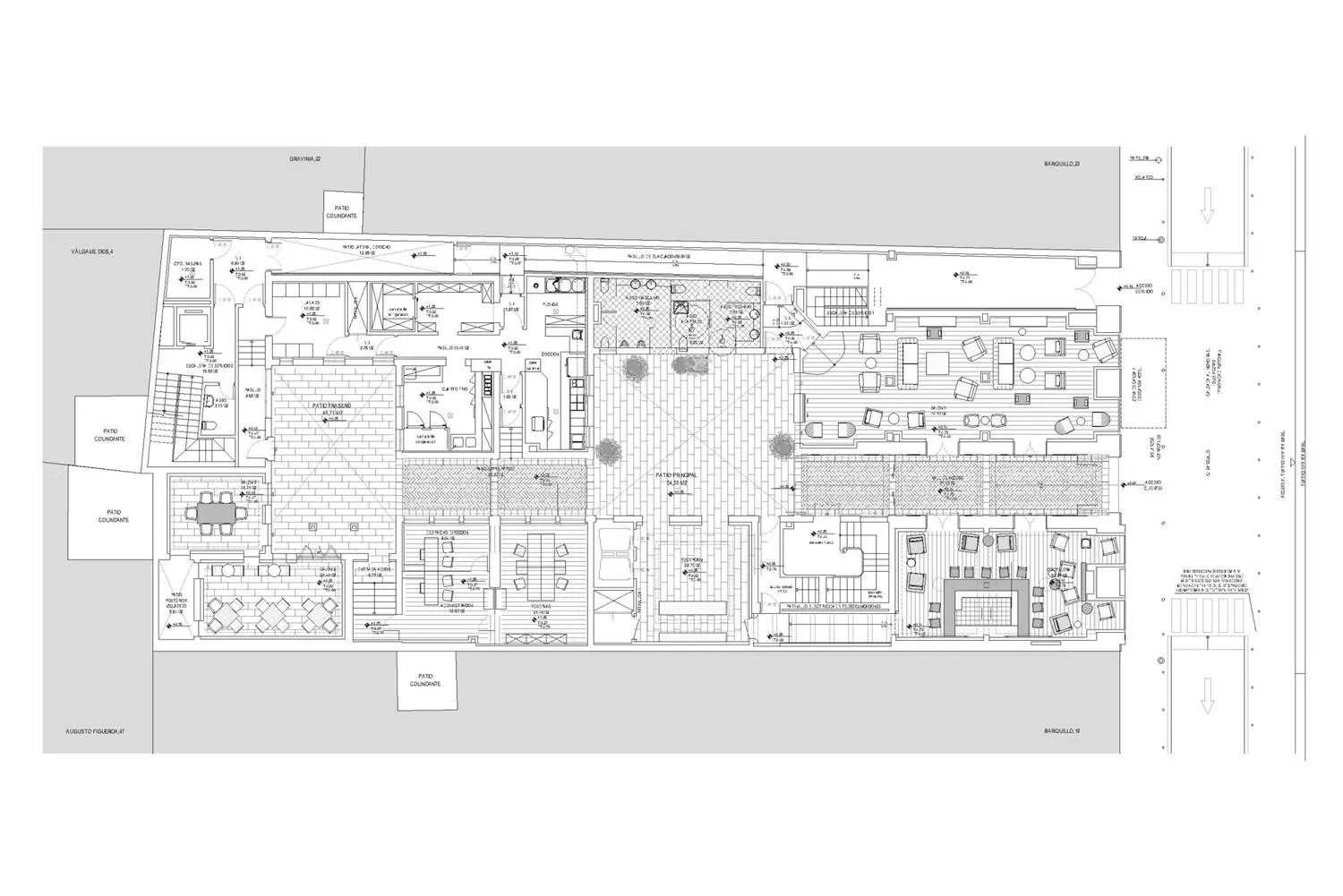
Hotel & Lounge Only You. Barquillo, 21. Madrid

2010-2013 / n.1251 / 3.800m2 / 72 hab / Uso hotelero / Plan especial, proyecto de arquitectura de cambio de uso y arquitectura interior y dirección de obra

hotel, Only you hoteles, Madrid, chueca, estudio b76

Un hotel boutique, elegante y que sabe aprovechar las preexistencias de un edificio de 1860 catalogado con protección integral por su valor arquitectónico.

Es además una nueva propuesta de explotación hotelera. La decoración y el interiorismo se ponen al servicio de un espacio que pretende ser más que un hotel, que quiere ser un lugar de actividad, lleno de vida cultural y social.

Premio al Mejor Hotel Boutique del Mundo y a la Mejor Rehabilitación Hotelera.

Estado anterior

Planos