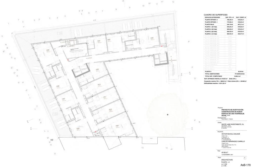
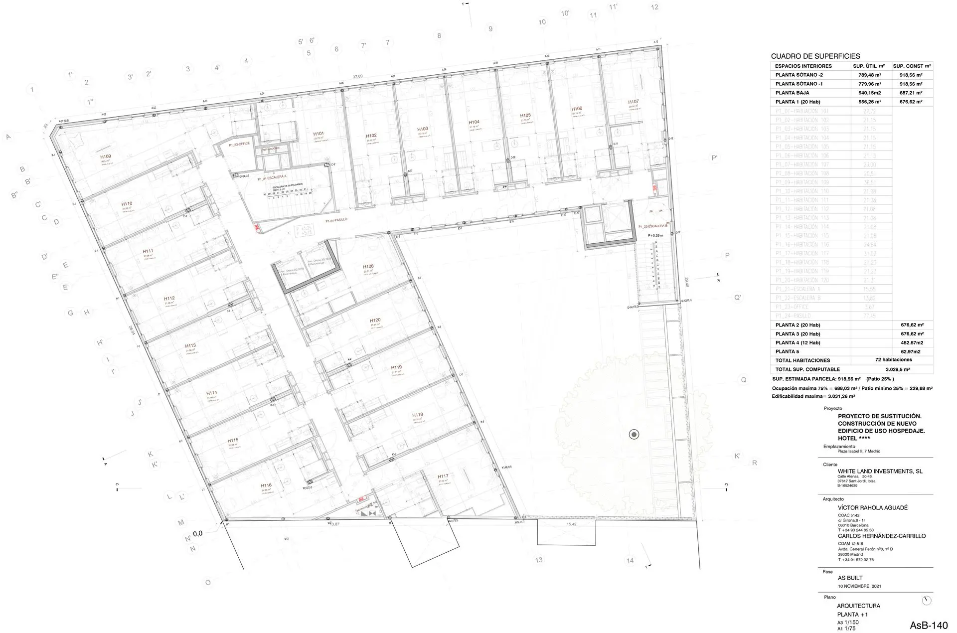
HOTEL OCEAN DRIVE MADRID. PLAZA DE ISABEL II

2021 / n.1473 / 3.031m2 – 71 hab / Uso Hotelero / Proyecto de arquitectura, arquitectura interior y dirección de obra

HOTEL OCEAN DRIVE MADRID. PLAZA DE ISABEL II

El mes de febrero de 2021 abrió sus puertas el proyecto hotelero de obra nueva de Estudio b76 y Rahola Arquitecte: el Hotel Ocean Drive Madrid.

Se plantea un proyecto de arquitectura equilibrada y respetuosa con el entorno sin renunciar a su contemporaneidad. El despiece de sus huecos verticales y su rítmico ligeramente variado en cada planta, marca la nota musical con la que dialoga con el imponente Teatro Real y cierra la fachada de la plaza.

Es una arquitectura que huye de personalismos, prefiriendo participar de la ciudad antes que competir con ella. El alzado principal cierra la plaza de Isabel II, pero en su planta baja, la masa edificada se retranquea tres metros, dándonos la bienvenida, cubriéndonos de la lluvia y el sol. Allí, una fachada totalmente acristalada nos muestra con promiscua transparencia lo que sucede en su interior, penetrando nuestra mirada hasta el patio del fondo, auténtico pulmón y remanso de paz para un entorno urbano denso e incansable.

Dibujos

Planos

Infografías

Vídeos