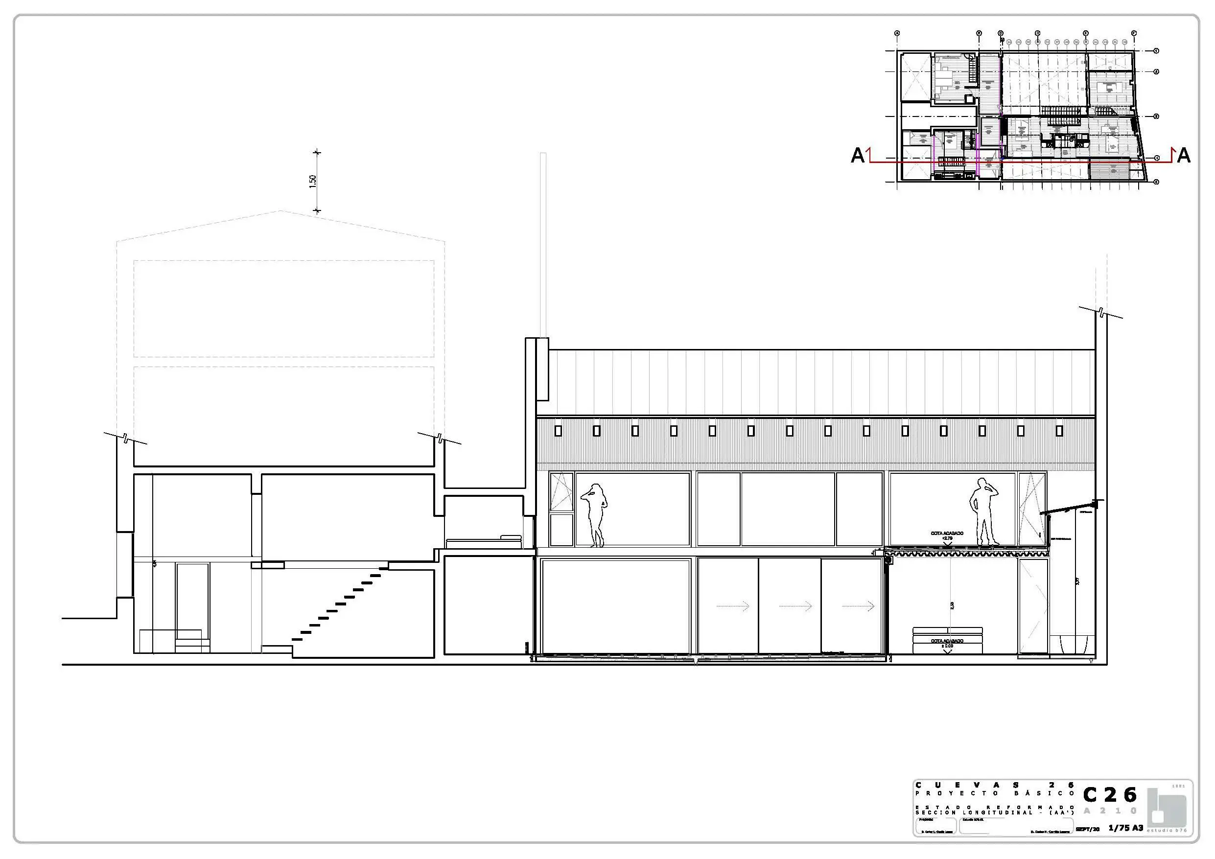
Nave industrial convertida en vivienda

2020 / n.1501 / 160m2 / Uso Residencial / Proyecto de arquitectura, arquitectura interior, decoración, equipamiento, promoción y obra

Una antigua nave industrial de los años 50 del barrio de Tetuán, es convertida en vivienda tipo Loft.

Estudio b76 ha desarrollado este proyecto en su condición de estudio de arquitectura e interiorismo, tramitando las licencias necesarias, gestionando la contratación de las obras y aportando el capital como promotores.

La vivienda se desarrolla en dos plantas, un patio alargado y ajardinado introduce luz y ventilación a cada espacio que conforma la vivienda.

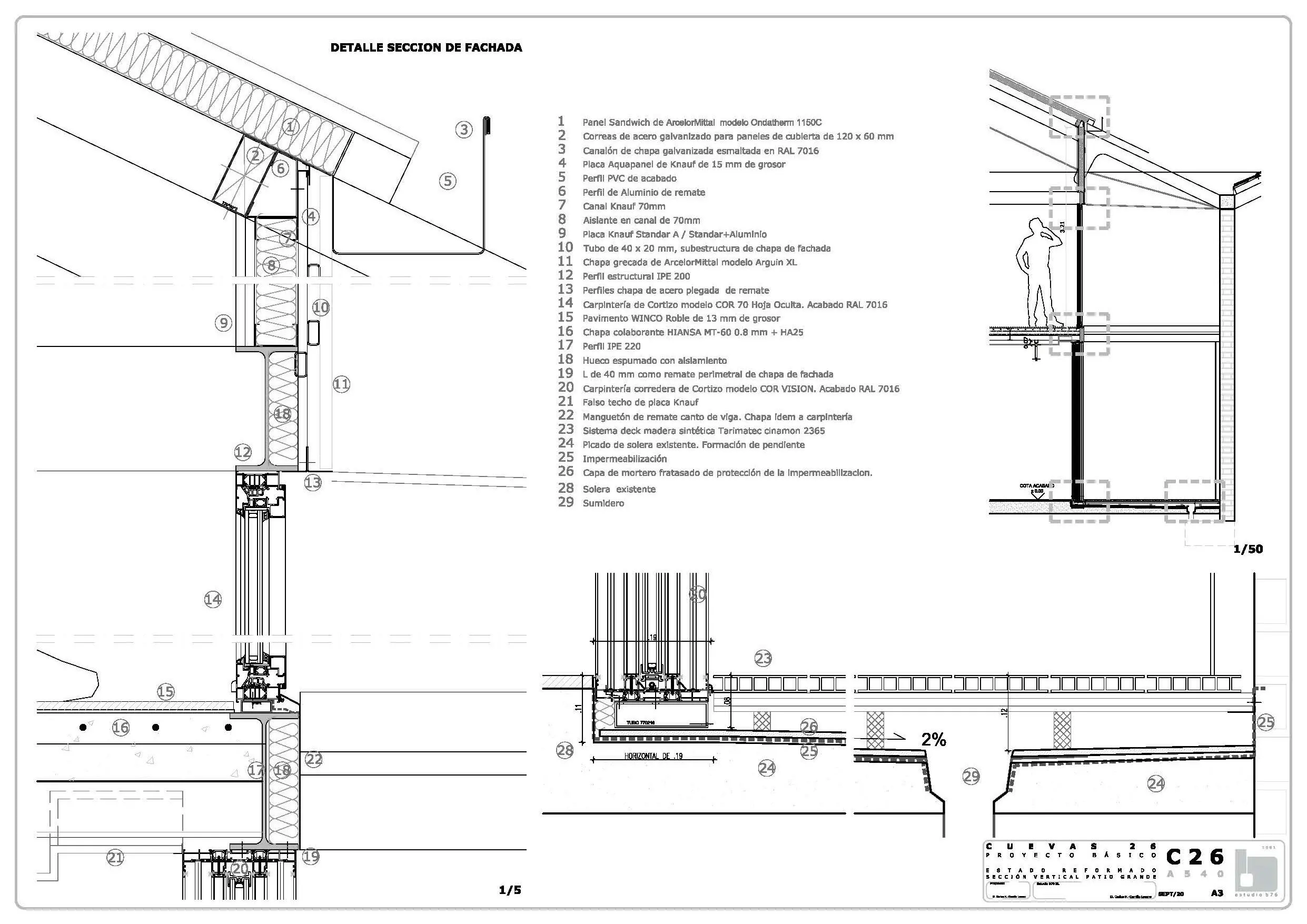
Dibujos

Planos