ACONDICIONAMIENTO GENERAL DE LAS OFICINAS FUNDACIÓN ALFONSO MARTÍN ESCUDERO FUNDAME

2012 / n.1334 / 220m2 / Trabajo / Proyecto de arquitectura interior, decoración y equipamiento

OFICINAS FUNDAME AVENIDA BRASIL 30 madrid estudio b76

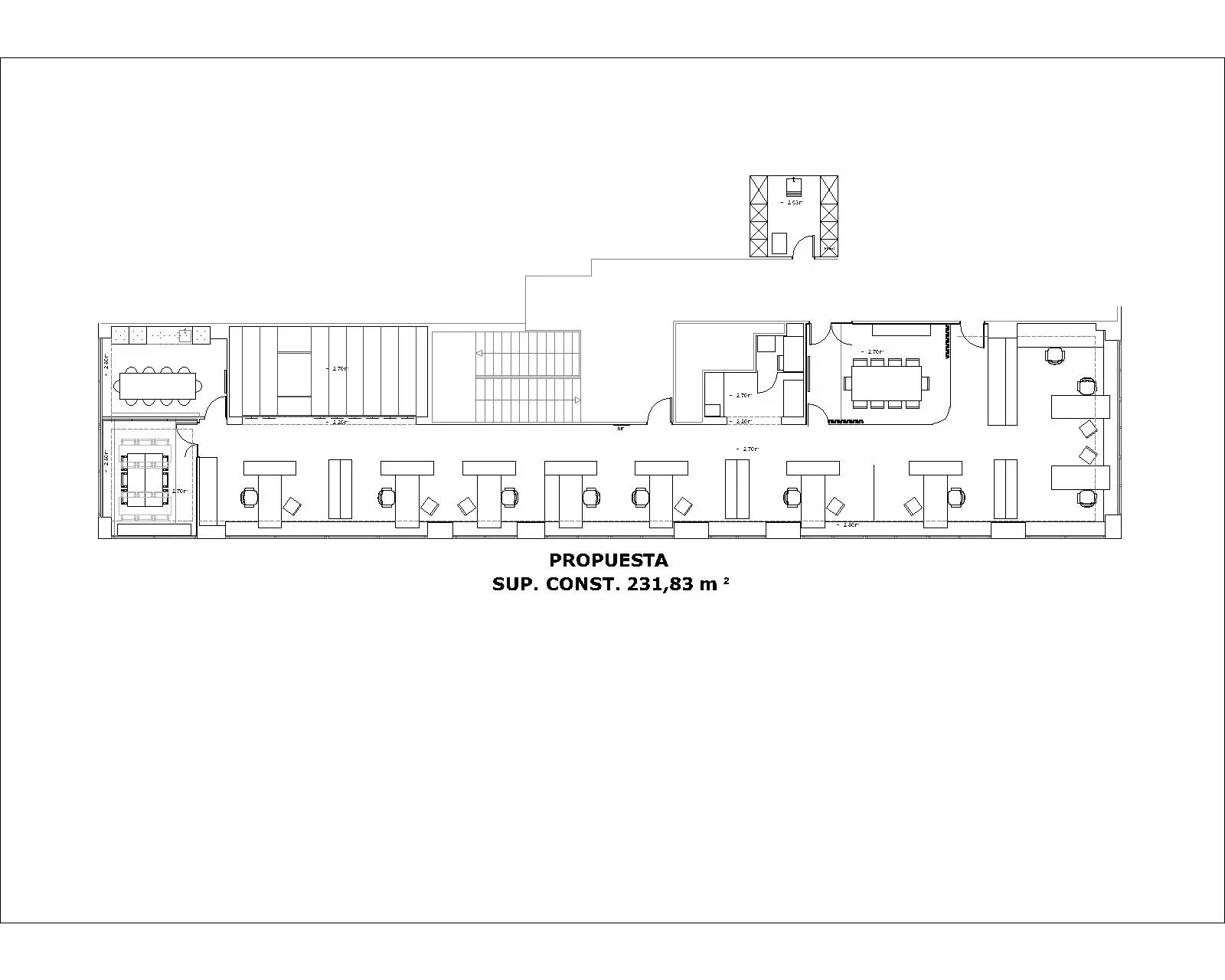
Proyecto finalista en el concurso restringido para la ampliación y acondicionamiento general de las oficinas de la Fundación Alfonso Martín Escudero. Ampliando puestos de trabajo, salas de reuniones y zona de archivo móvil. Se han diseñado panelados decorativos en las salas de reunión para unir estéticamente estas oficinas generales con el futuro proyecto de decoración de las oficinas de presidencia adyacentes.

Antes / después

antes OFICINAS FUNDAME AVENIDA BRASIL 30 madrid estudio b76

Planos