Oficinas Instituto Geológico y Minero de España

2008 / n.1243/ 850m2 / Oficinas / Proyecto de arquitectura interior, decoración, equipamiento y obra

reforma oficinas, instituto geológico y minero de España, FAME, call alenza, estudio b76, Madrid

El Instituto Geológico y Minero de España encarga a Estudio B76 el acondicionamiento integral de sus oficinas situadas en la calle Alenza de Madrid.

Se trata de dos plantas cuyo estado original era un espacio con distribución excesivamente compartimentada mediante tabiques de obra.

El objetivo era lograr que la luz natural penetrara en todos los espacios. A pesar del exigente y denso programa del IGME el objetivo se logró mediante tabiquería acristalada transparente.

Los elementos de archivo se convierten en motivo decorativo y de organización de los diferentes ámbitos. el techo acústico de placa de cartón yeso, la iluminación y climatización se encargan de un correcto acondicionamiento del espacio de trabajo.

Antes / después

reforma oficinas, instituto geológico y minero de España, FAME, call alenza, estudio b76, Madrid reforma oficinas, instituto geológico y minero de España, FAME, call alenza, estudio b76, Madrid

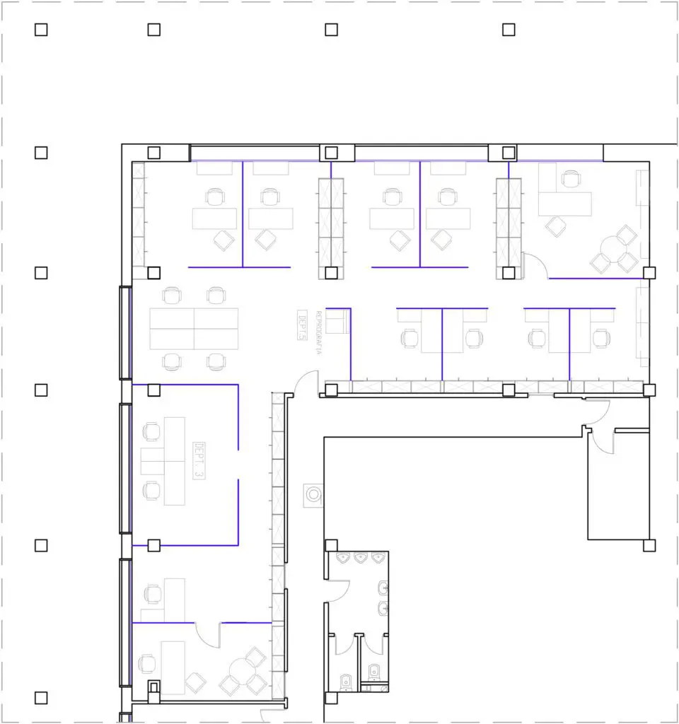
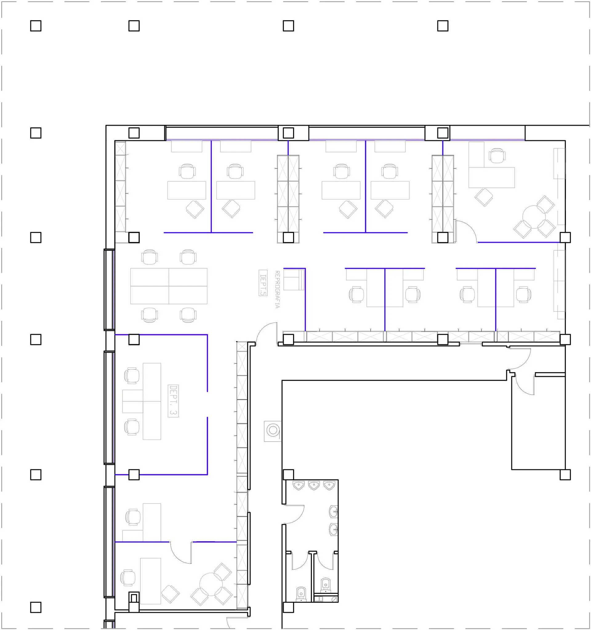
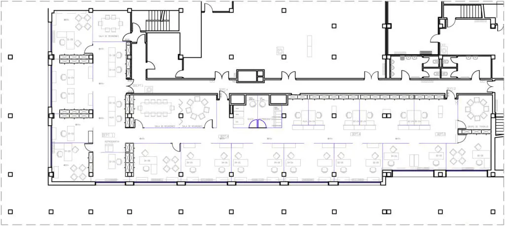
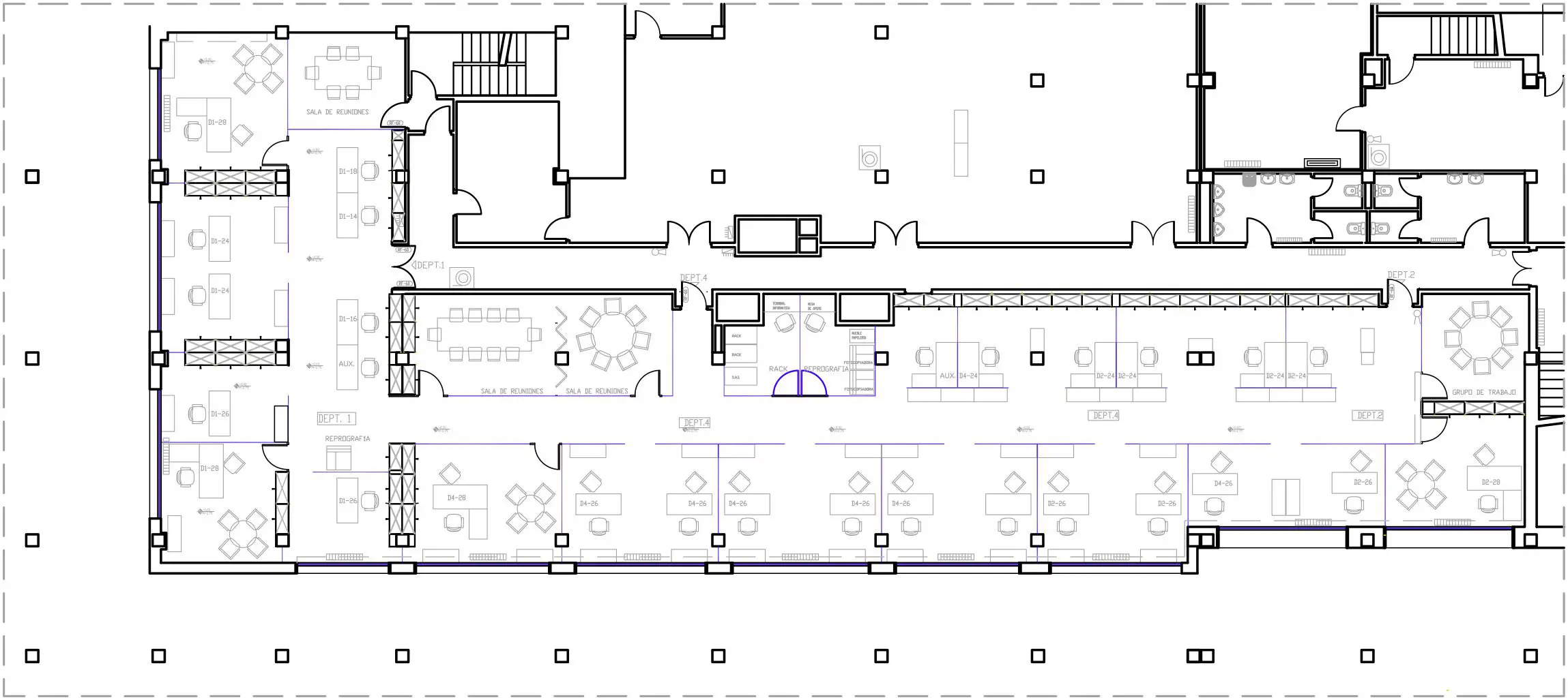
Planos

Infografías