OFICINAS Y SHOWROOM PROYECTO CANALEJAS. MADRID

2014  / n.1379 / 900m2  / Oficinas / Proyecto de interiorismo, decoración, equipamiento

proyecto canalejas, showroom, estudio b76

El objetivo del proyecto, equipar y decorar los espacios de las plantas sexta y quinta del edificio situado en la Plaza de Canalejas de Madrid, de la forma más adecuada para cumplir la función de oficinas de comercialización y showroom de “Canalejas Madrid Centro”, dando además la imagen de calidad que tan importante es para la promoción inmobiliaria.

Antes / después

proyecto canalejas, showroom, estudio b76 proyecto canalejas, showroom, estudio b76
proyecto canalejas, showroom, estudio b76 proyecto canalejas, showroom, estudio b76
proyecto canalejas, showroom, estudio b76 proyecto canalejas, showroom, estudio b76
proyecto canalejas, showroom, estudio b76 proyecto canalejas, showroom, estudio b76

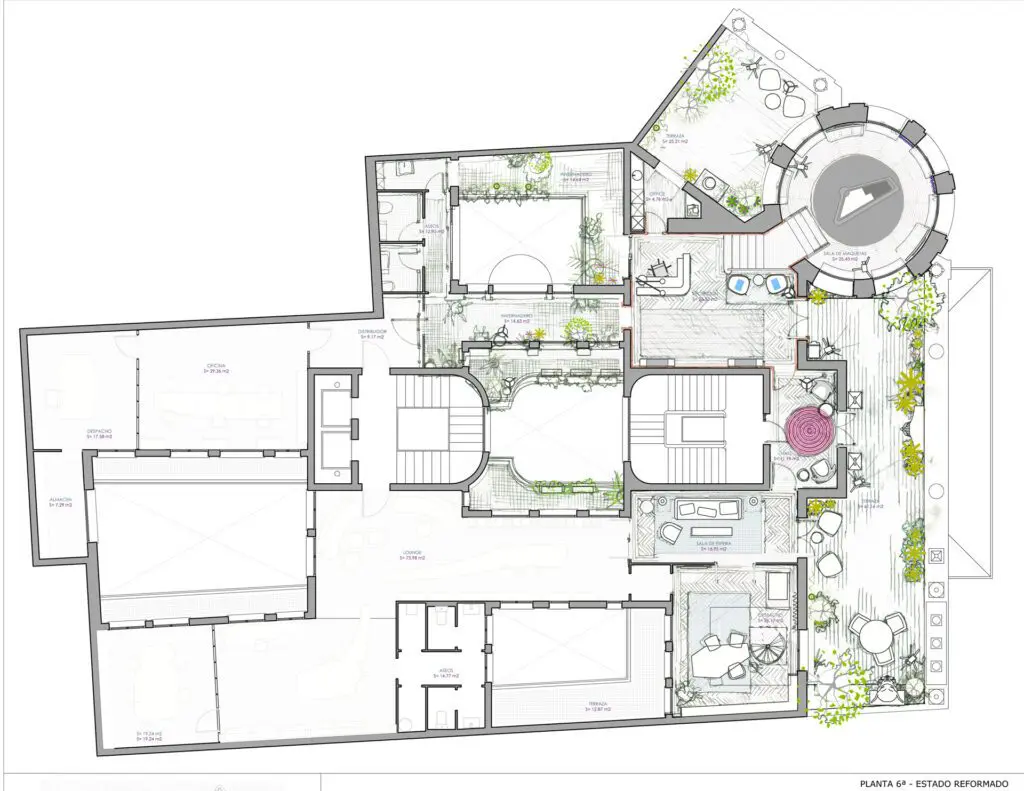
Planos