PORTAL, PASILLOS Y ZONAS COMUNES. EDIFICIO CAPITAN HAYA, 19. FAME. MADRID

2010 / n.1257b / 362m2 / Residencial Portal / Proyecto de arquitectura interior, decoración, equipamiento y obra

reforma portal, portal diseñado, edificios de alquiler de viviendas, FAME, Fundación alfonso martín escudero, estudio b76, Madrid

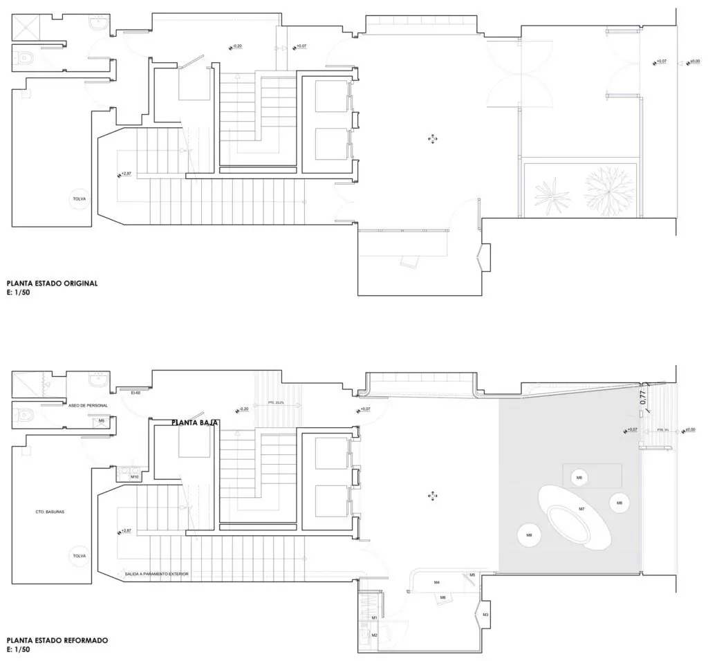
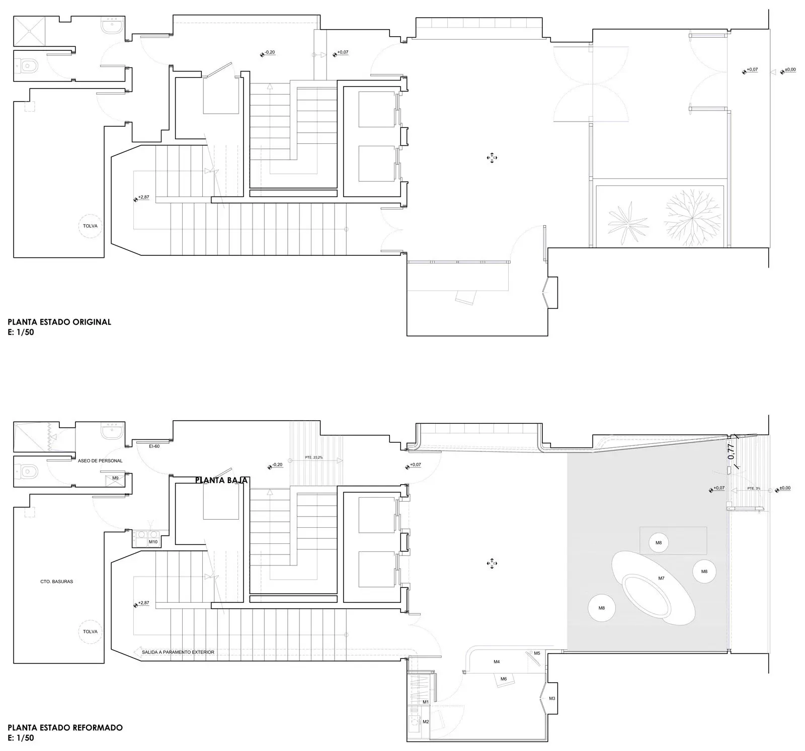
La Fundación Alfonso Martín Escudero encarga a Estudio b76 la reforma integral del portal y zonas comunes de su edificio destinado a viviendas en régimen de alquiler situado en la C/ Capitán Haya, 19. El portal se abre a la calle como reclamo para los posibles inquilinos mostrando un diseño y una calidad de materiales y acabados que invitan a conocer los pisos en alquiler.

La repercusión que la mejora de espacios comunes de un inmueble como son sus portales tiene en el precio de las viviendas a las que sirven es notorio. Es una inversión siempre rentable y así lo entendieron los responsables de la Fundación propietaria.

Antes / después

antes-01-1 despues-01-1
antes-02-1 despues-02-1
antes-03-1 reforma portal, portal diseñado, edificios de alquiler de viviendas, FAME, Fundación alfonso martín escudero, estudio b76, Madrid

Planos

Dibujos

Infografías