2014 / n.1364 / Ocio restaurante / Proyecto de arquitectura, interiorismo, decoración, equipamiento y obra
Encargan a Estudio b76 el proyecto y obra de rehabilitación de uno de los tres antiguos chiringuitos del Hotel Palm Beach de Ibiza en Playa d’en Bossa, que este estudio proyecto y construyó en los primeros años 80.
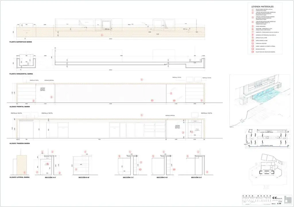
Se respeta la sencilla estructura original compuesta por dos hexágonos unidos por una pieza rectangular que contiene la barra y cocina. Frente a esta estructura una gran terraza que se cubre con toldos móviles.
El objetivo es darle parte del carácter de su propietario y chef, Jimmy Immler, alemán enamorado de la isla.
Del mismo modo conseguimos convertir los dos espacios hexagonales en espacio de comedor para poder prolongar la temporada cuando la terraza no se puede utilizar, dejándolos diáfanos y revestidos de carpintería de aluminio térmica y revestimientos de madera natural de roble así como cubriéndolos con panel sándwich.