Vivienda unifamiliar Montelaina. Madrid

2014 / n.1356 / 800m2 / Uso residencial / Proyecto de ampliación, interiorismo, decoración equipamiento y obra

vivienda unifamiliar, urbanización Montelaina, estudio b76

Encargan a Estudio b76 la reforma de una vivienda unifamiliar situada en la urbanización Montealina de Madrid. La arquitectura original tiene un diseño “complicado” y una funcionalidad mal resuelta entre espacios nobles y de servicio así como una mala conexión entre los espacios interiores y el precioso jardín que la rodea.

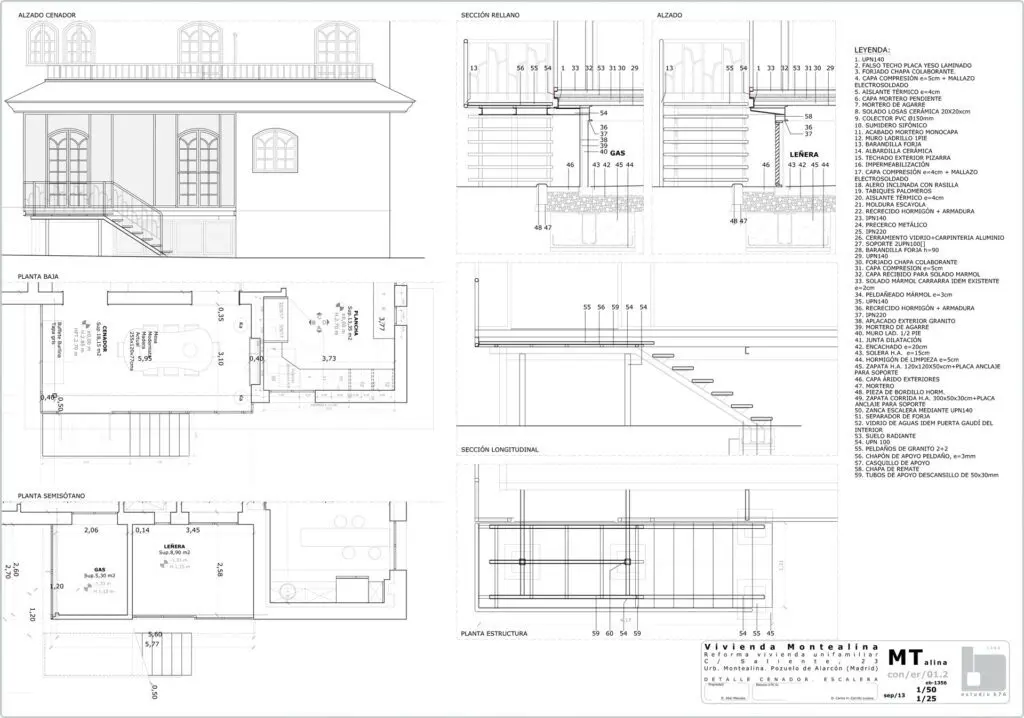
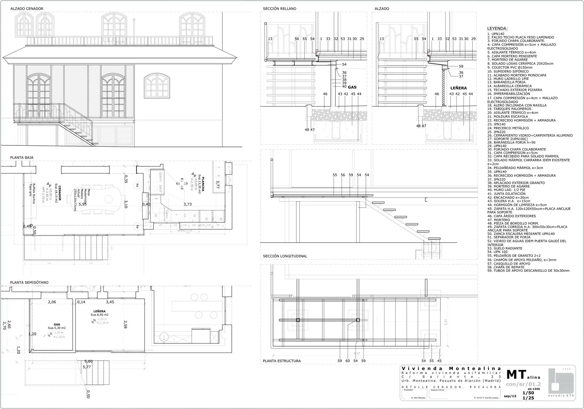
La solución aportada es la ampliación mediante la construcción de un cenador que resuelve ambos problemas.

La decoración se resolvió en colaboración con la decoradora Stella Matutes.

Antes / después

vivienda unifamiliar, urbanización Montelaina, estudio b76 vivienda unifamiliar, urbanización Montelaina, estudio b76
vivienda unifamiliar, urbanización Montelaina, estudio b76 vivienda unifamiliar, urbanización Montelaina, estudio b76

Dibujos

Planos