PROYECTO DE INTERIORISMO PARA HABITACIONES Y RECEPCIÓN. HOTEL NH COLLECTION Madrid PALACIO DE TEPA. PLAZA DEL ÁNGEL, 10

2024 / n.1677 / 2.179m2 – 85hab / Uso Hotelero / Interiorismo y decoración

decoración hotelera, interiorismo hotelero, palacio de tepa, nhc palacio de tepa, hotel palacio de tepa, calle san sebastian, madrid estudio b76

Minor Hotels encarga al estudio de arquitectura e Interiorismo, Estudio b76, la redecoración y nuevo amueblamiento de sus 85 habitaciones, recepción y acceso desde calle del Ángel.

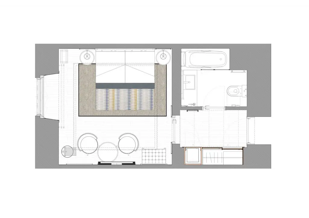
La intervención de Estudio b76 en las habitaciones se enfocó en enriquecer, principalmente, las paredes tanto del cabecero como la correspondiente a la televisión, así como de la incorporación de nuevo mobiliario, equipamiento e iluminación. 

La intervención en la recepción, antiguo patio interior del Palacio de Tepa, cubierto con acristalamiento en el proyecto de Feduchi, es también objeto de la intervención de Estudio b76, quienes recuperan la idea de invernadero para este nuevo interiorismo.

Dibujos

Planos

Antes / después

antes_1-1 despues_1-1
antes_2-1 despues_2-1
antes_3-1 despues_3-1

Si quieres conocer más detalles de este proyecto visita la entrada de nuestro blog dedicada al Hotel NH Collection Madrid Palacio de TEPA.