En este artículo te mostramos cómo diseñar una habitación de hotel funcional, cómoda y con personalidad única, tomando como referencia proyectos recientes de Estudio b76 en ciudades como Madrid, Sevilla, Marbella o Barcelona. Además, exploramos cómo la arquitectura hotelera y el interiorismo han evolucionado para adaptarse a las nuevas necesidades del viajero contemporáneo.
La habitación como núcleo del hotel
Sin duda, la razón de ser de un hotel es la existencia de habitaciones; sin habitaciones, no hay hotel. Para un hotelero, la rentabilidad de su establecimiento gira en torno a ellas. De sus características, servicios y dimensiones depende, en gran medida, la categoría del hotel, regulada por las diferentes normativas autonómicas.
El resto del espacio de un establecimiento hotelero está supeditado a las habitaciones, permitiendo ofrecer los servicios mínimos exigidos por la normativa y la necesidad de la propia operatividad o ampliando estos servicios mínimos hasta dar un carácter especial al establecimiento, cuyo objetivo principal siempre será el aumento del precio de la habitación.
En función del número de habitaciones que seamos capaces de incluir en nuestro proyecto, el promotor sabrá cuáles son los rendimientos económicos previstos y, en consecuencia, cuál puede ser su capacidad inversora.
Por lo tanto, el primer paso que como proyectistas debemos dar, es proceder con una correcta distribución de las plantas de habitaciones, siendo conscientes de las diferentes normativas que nos afectarán: las sectoriales, para la determinación de la superficie según la categoría; las de protección contra incendios, para determinar la sectorización y evacuación; y la normativa de accesibilidad, principalmente.
Sin embargo, en este artículo nos enfocamos no tanto en lo normativo, sino en el diseño interior de la propia habitación: sus elementos esenciales, su evolución funcional y estética, y cómo personalizarlos para crear una experiencia única.
Centrémonos en una unidad de habitación doble estándar de un hotel 4* urbano.
Integración entre espacio de dormitorio y baño en una habitación de hotel
El elemento fundamental es la cama: es la pieza que da sentido a la habitación, no hay habitación de hotel sin cama. En torno a esta, se organiza el espacio de dormitorio y, aledaño a este, el baño. En las últimas décadas, es probablemente la relación entre ambas piezas —dormitorio y baño— lo que más ha evolucionado.
Hasta bien entrado el siglo XXI, difícilmente encontrábamos baños integrados espacial o visualmente con el dormitorio; sin embargo, actualmente, de una forma u otra, esta integración se ha normalizado.
En el caso de Estudio b76, fue en 2007, en el Hotel Only You and Lounge, en la calle Barquillo, donde desarrollamos por primera vez esta integración entre el espacio de dormitorio y el baño, de forma casi pionera en Madrid, y posteriormente, de forma aún más valiente, en el Ibiza Hard Rock Hotel. Desde entonces, hemos seguido investigando diferentes variaciones sobre el mismo tema, siempre que el proyecto o las preexistencias nos lo han permitido.


Proyecto destacado: Vibra Hotels en Sevilla
En el caso del nuevo hotel que Estudio b76 está proyectando en el imponente edificio de la Unión y el Fénix en Sevilla, para Vibra Hoteles, hemos aprovechado la difícil composición estructural de un edificio diseñado originalmente para contener las oficinas de atención al público del Banco Español de Crédito y viviendas en sus plantas superiores, para proponer una original distribución.
La disposición de las habitaciones logra ocultar los pilares de un orden estructural original no coincidente con la lógica dimensional de una habitación doble estándar.

Por otra parte, se crea una sensación de mayor amplitud, mediante la comunicación visual entre el entorno del lavabo y la ducha, y el espacio de dormitorio, siendo un diseño exclusivo de celosía nazarí, el elemento divisor entre ambos espacios.
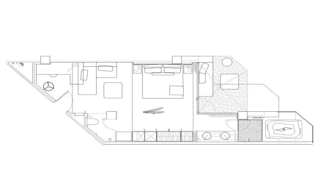
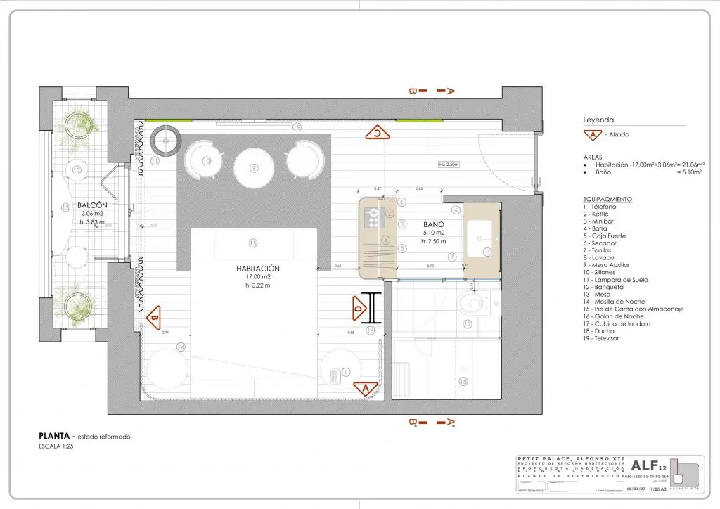
Proyecto destacado: Hotel Icon Petit Palace Alfonso XII (Madrid)
En el proyecto que Estudio b76 desarrolla para Atelier, para la transformación de uno de sus Petit Palace en su gama superior Icon, se planteó inicialmente con la división del baño existente entre la zona de lavabo y la de inodoro y ducha, abriendo a su vez esa primera zona del lavabo al dormitorio mediante una singular pieza que hacía las veces de armario, conteniendo además la bandeja de cortesía, frigo y caja fuerte. De esta manera, conseguíamos al mismo tiempo ganar a la pieza de baño 0,5 m² y tener el baño dividido en dos piezas, ambas condiciones necesarias para subir la categoría de 4* a 5*.

Evolución del espacio escritorio de la habitación a espacio estancial, cómodo y versátil
Aprovechamos para hablar del elemento “escritorio” y las dos piezas para sentarse necesarias según normativa y de cómo estas han evolucionado hasta convertirse en elementos más cómodos, versátiles y funcionales.
Tradicionalmente, los hoteles 4* han estado equipados con escritorio con silla y pequeño mueble bar refrigerado y, aparte, con butaca independiente. La pieza escritorio solía ser un mueble enfrentado a la pared; servía de soporte para la televisión, amenities y bandeja de cortesía, y en el mejor de los casos nos permitía un pequeño espacio para trabajar.
No fue hasta 2006, con la generalización del televisor plano, que se comenzó a liberar a los escritorios y a la propia habitación de la voluminosa presencia de las televisiones de tubo, pasando estas a ocupar un espacio de la pared enfrentada a la posición de la cama, a modo de cuadro.

De esta manera, la mesa escritorio continuó utilizándose como soporte para la bandeja de cortesía y lámpara, así como superficie para trabajar con ordenador portátil, especialmente en hoteles con carácter business.
Como evolución lógica, fue entonces cuando desde Estudio b76, junto con el equipo de diseño de Minor Hotels, se planteó para el NH Collection Madrid Hotel Palacio de Tepa una interesante solución que elimina el concepto tradicional de escritorio contra la pared, mediante una pieza móvil y central, ligera y multifuncional, a 65 cm de altura, acompañada de dos butacas.
Esta pieza sirve simultáneamente para trabajar, leer, consultar el dispositivo móvil, desayunar o cenar en la habitación ambos ocupantes, permitiendo una mayor libertad de diseño, y mejora de la estética y amabilidad del dormitorio.

Esta misma solución es la que Estudio b76 plantea para la reforma del Hotel Pestana Arena Barcelona situado en la ciudad, o el Alfonso XII Savoy en Madrid



Desde Estudio b76 se han ido replanteando los diferentes elementos de la habitación de hotel, adaptándolos a las nuevas necesidades de los clientes y aprovechando la libertad que la tecnología nos ofrece. La tradicional mesa escritorio se libera de su anterior obligada posición frente a la cama, convirtiéndose en mesa redonda con butacas, pudiendo buscar una posición más holgada, ya sea ocupando un espacio similar al que anteriormente ocupaba el escritorio o, incluso, cuando la habitación tiene una disposición más alargada, quedando frente a la ventana para aprovechar la luz natural.

Evolución del mueble bar y armario ropero de la habitación de hotel
Evidentemente, ese paso solo se pudo dar al buscar una nueva ubicación para la bandeja de cortesía. Esa necesidad llevó al diseño de una nueva pieza de mobiliario, teniendo para esto dos posibles soluciones:
La primera, si la dimensión del bloque de armario lo permite, es la inserción de un elemento vertical en el propio armario que contiene el mueble bar, cafetera y la superficie horizontal para amenites, sobres de infusión, cápsulas, etc. Esta fue la solución que Estudio b76 implementó en el NH Collection Madrid Hotel Palacio de Tepa, en el recientemente proyectado Vibra Hotels en Sevilla o en la propuesta realizada para Vincci Soma de Madrid.

La segunda opción, cuando el espacio destinado al armario no es suficiente, consiste en un mueble bar exento, que contiene el pequeño frigorífico y la superficie de soporte para la bandeja de cortesía, esa es la solución planteada para el NH Collection Marbella.


Ejemplo de la primera: el Hotel Pestana Arena Barcelona o el del Hotel de Vibra Hotels en Sevilla
Ejemplo de la segunda: el NH Collection Marbella o la propuesta para el Hotel Vincci Soma.
Liberada la pared del escritorio esta queda desnuda con tan solo un rectángulo negro —la televisión— Esto hace necesario pensar en un elemento decorativo significativo, en diálogo o contraposición a la pared enfrentada, la correspondiente al cabecero.
La importancia del diseño estético: dar personalidad a la habitación.
Si bien hasta ahora hemos hablado de las diferentes interpretaciones funcionales de un elemento, a priori simple —una habitación doble estándar de un hotel 4*—, ahora toca entrar en las cualidades estéticas, donde probablemente podamos marcar las diferencias de carácter entre las habitaciones de diferentes hoteles, diferentes marcas, diferentes ciudades, diferentes barrios y diferentes clientes objetivo.
Todos estos ingredientes, junto con la capacidad estética de los proyectistas y decoradores, permiten generar personalidades únicas, capaces de dejar una impronta inolvidable en los clientes que visiten una habitación diseñada por Estudio b76.
Vamos a repasar los más recientes diseños de habitación hotelera dentro de su contexto urbano y concepto hotelero buscado: habitación del futuro Hotel de Vibra Hotels en Sevilla y la habitación del hotel proyectado Palacio Alfonso XII Savoy en Madrid

Habitación del futuro hotel de Vibra Hotels en Sevilla
Se acaban de iniciar las obras de este hotel proyectado por Estudio b76, en el centro de Sevilla, en un edificio histórico de 1940 que perteneció a la compañía aseguradora La Unión y el Fénix Español, proyectado por el arquitecto Antonio Cánovas del Castillo y con estructura de hormigón armado del excelso ingeniero Eduardo Torroja.
El edificio cabalga entre el eclecticismo, la arquitectura sólida ligada al racionalismo y los toques decorativos sevillanos.
La propuesta de Estudio b76 para sus habitaciones combina, al igual que el propio edificio, la elegancia racional en su distribución y panelados de madera lisos, con elementos decorativos y textiles cargados de expresividad andaluza, desde color rojizo del cabecero, el plaid de tejido alpujarreño o el papel vinílico diseñado a partir de un bellísimo mantón de manila con motivos florales, ramajes, y aves del paraíso. Un hotel 4* superior que muestra a los clientes la artesanía y estética de la bella y colorida Sevilla, ya desde la propia habitación del Hotel.
Es una habitación única y propia para ese edificio histórico y esa ciudad incomparable.

Propuesta habitación del hotel Petit Palace Alfonso XII. Futuro hotel Icon Alfonso XII Savoy
La propuesta conceptual que Estudio b76, junto con el equipo de grupo Atelier, a desarrollado para este bellísimo edificio ecléctico de principios del siglo XX, busca la conexión entre los conceptos históricos del inmueble y su proximidad al gran pulmón natural del centro de Madrid: el Parque del Buen Retiro, al que desde la mayoría de sus habitaciones tiene privilegiadas vistas.
Esta afortunada ubicación convierte al Hotel Alfonso XII en objetivo de un tipo de clientela que valora conceptos como el ecoluxury, organic elegance o la capacidad de disfrutar en plena urbe de un espacio natural y relajante como es el Parque del Retiro.
De esta manera el proyecto de Estudio b76 potencia la conexión con ese rico jardín urbano, utilizando materiales naturales y colores relajantes que convierten a la habitación en un ambiente tranquilo, elegante y natural.
Los 50 años de experiencia de Estudio b76 en proyectos hoteleros, han aportado a todo su equipo un conocimiento inmejorable de las necesidades de este sector y sus clientes y como estas han ido evolucionando a lo largo de las décadas. Estudio b76 ha sido protagonista indiscutible, como arquitectos e interioristas, de esta evolución pasada, presente y sin duda de la que está por venir.